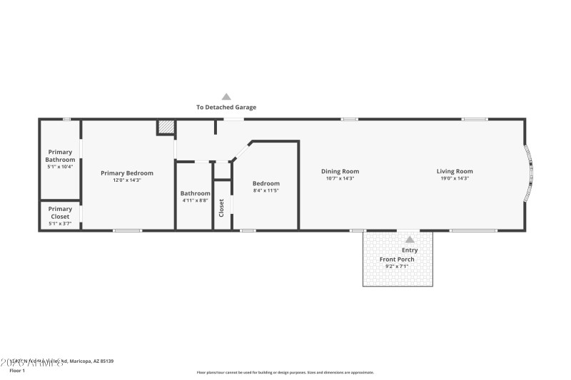
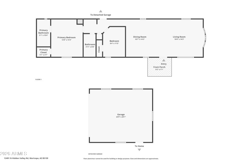
A MUST SEE! This REMODELED beauty sits on 2.8 MOUNTAINSIDE acres & has plenty of room for horses & toys! This gorgeous MOVE-IN READY home boasts over 1000 sq ft & is loaded with upgrades- NEW ROOF, wood laminate flooring throughout, FRESH neutral two-toned paint inside & out, vaulted ceilings, upgraded fixtures & more! Featuring spacious entertainers kitchen with White cabinetry, granite countertops, SS appliances + 2 large bedrooms (with walkin closets), 2 full baths & open concept floorplan with palatial great room with bay window & breakfast bar! Spacious primary features an ensuite bath with granite vanity & large shower! Stunning lot nestled among saguaros & pristine desert landscaping with detached 2 car garage, full covered patios, no HOA, shared well, paved roads & MOUNTAIN VIEWS!
From 347- West on Hwy 238, Left on Rio Bravo/Hidden Valley Road, Property on Left past Farrell Road
Dwelling Type: Residential
Subdivision: Hidden Valley
Year Built: 1996, County: N/A
From 347- West on Hwy 238, Left on Rio Bravo/Hidden Valley Road, Property on Left past Farrell Road
Listing is courtesy of The Maricopa Real Estate Co
Sign in to your account to continue