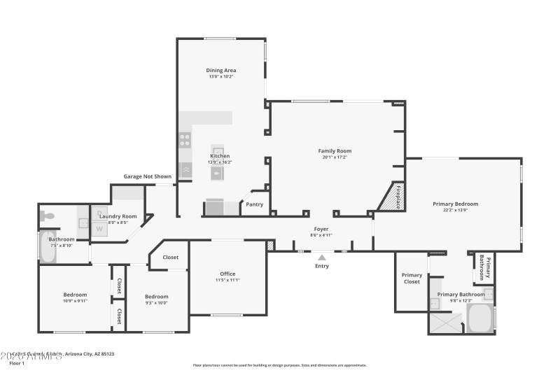
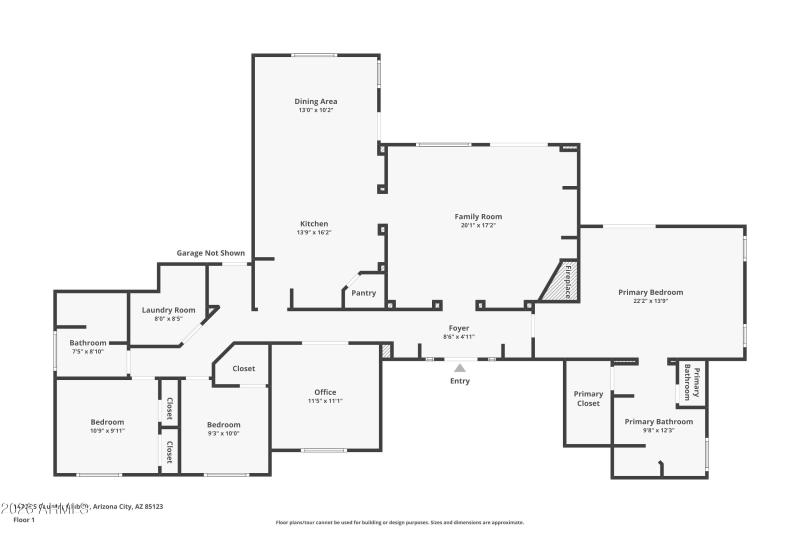
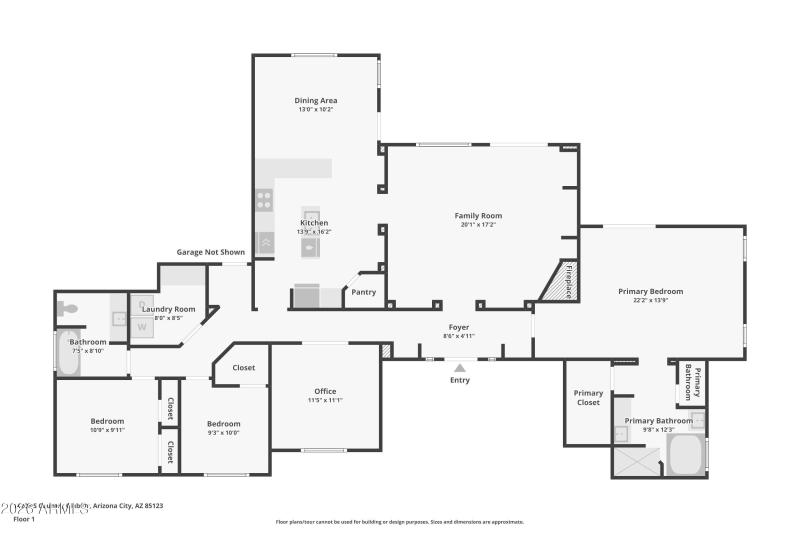
Wow! Southwestern style greets you with Santa FE-style logs, wooden beams, outside and inside. These Viga beams are traditional in Southwestern architecture. Gated courtyard leads to a festively decorated entry way and porch, then it's Fiesta time as you enter the expansive 3-bedroom home plus large office with high-end lovely tile, plantation shutters throughout and French doors to the backyard. The 1/3 acre parcel is on the Golf Course. Upgraded touches include granite island and countertops in the kitchen and granite countertops in the bathrooms. Primary suite offers 2 vanities, walk-in-shower, separate tub and walk-in closet. The over 16,000 lot sits on the Golf Course and the 2006 built home has a brand New Roof with a 10-year transferrable warranty! No HOA. Have fun, enjoy this home!
From Sunland Gin, E on Battaglia, S on Overfield to Santa Cruz, W on Santa Cruz to Country Club Way, S on Country Club Way to home on right.
Dwelling Type: Residential
Subdivision: ARIZONA CITY UNIT THREE
Year Built: 2006, County: N/A
From Sunland Gin, E on Battaglia, S on Overfield to Santa Cruz, W on Santa Cruz to Country Club Way, S on Country Club Way to home on right.
Listing is courtesy of RE/MAX Casa Grande
Sign in to your account to continue