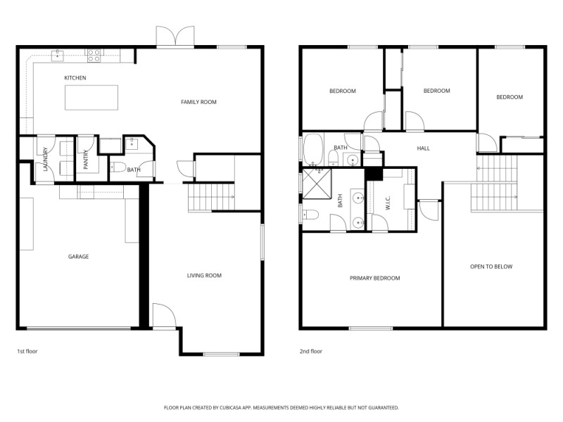
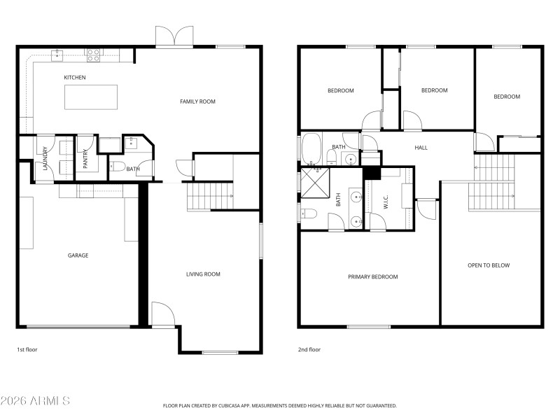
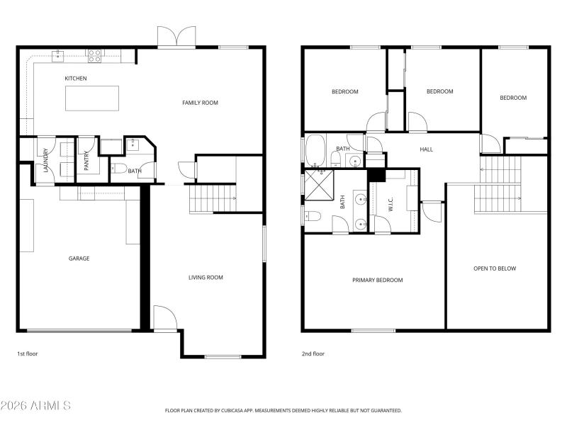
Welcome to this beautifully updated home offering 4 bedrooms and 2.5 baths across 2145 square feet of inviting living space. The thoughtful floor plan features a bright front living and dining area with vaulted ceilings, along with a separate family room that opens seamlessly to the upgraded kitchen. Here you will find white soft-close cabinetry with crown molding, stunning quartz countertops, a stylish tile backsplash, Miele stainless appliances, a walk-in pantry, and an island with a breakfast bar for casual dining. French doors lead to a fantastic backyard designed for both relaxation and entertaining, complete with a covered patio with ceiling fans and tile flooring, a built-in BBQ island under a covered ramada, and a stacked stone firepit with built-in seating. A staircase accented by a stacked stone feature wall leads to the bedrooms, including an oversized primary suite with a walk-in closet with built-ins and an en-suite bath featuring a dual sink vanity, designer mirror, and a tiled shower with a rain shower head and glass enclosure. Additional highlights include understair storage, luxury vinyl plank flooring, stone exterior accents, leased solar panels, and a 2-car garage with built-in cabinets.
South on 83rd Ave., Right on Elwood St., continue onto Lilly Ln, Left on Riley Rd., Right on Justin Dr., Right on Pioneer St. to home on the Left.
Dwelling Type: Residential
Subdivision: 83RD AVE LOWER BUCKEYE RD
Year Built: 2005, County: N/A
South on 83rd Ave., Right on Elwood St., continue onto Lilly Ln, Left on Riley Rd., Right on Justin Dr., Right on Pioneer St. to home on the Left.
Listing is courtesy of Keller Williams Arizona Realty
Sign in to your account to continue