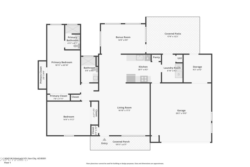
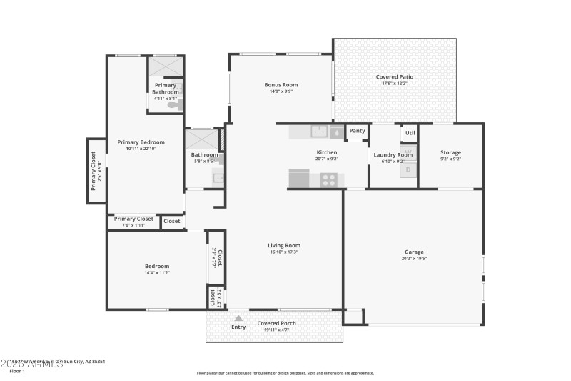
This thoughtfully updated home features an expanded master bedroom with a master bath with a tile walk-in shower, an additional closet, a spacious alcove - ideal for a reading area or a home office, and woodgrain tile throughout the living areas. The spacious dining area just off the kitchen sets the stage for memorable gatherings. When the party moves outside, the covered paver patio delivers an inviting setting for relaxing and entertaining. Additional highlights include indoor laundry, a large storage/workshop area off the garage, and a clean stucco exterior that gives the home fresh curb appeal. Major systems offer peace of mind with the newer HVAC and Roof. Stylish, functional, and move-in ready--this home truly checks all the boxes.
Go South on Del Webb Blve, from N Del Webb Blvd, turn East on W Talisman Rd to W Kingsman Cir, turn right to home on the left.
Dwelling Type: Residential
Subdivision: SUN CITY UNIT 21
Year Built: 1971, County: N/A
Go South on Del Webb Blve, from N Del Webb Blvd, turn East on W Talisman Rd to W Kingsman Cir, turn right to home on the left.
Listing is courtesy of eXp Realty
Sign in to your account to continue