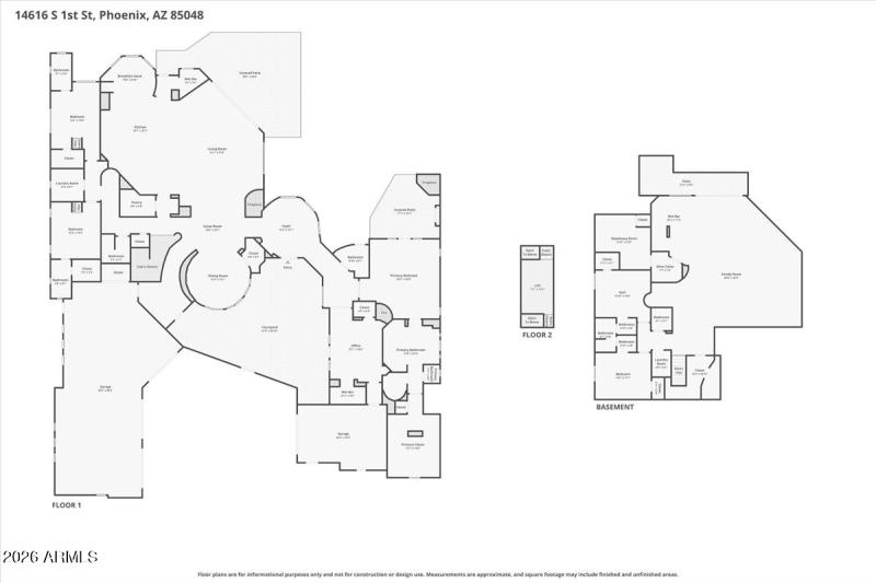
Set against a dramatic mountain backdrop in the exclusive Summerhill enclave, this architecturally bold desert estate is designed for those who love to entertain. Spanning 7,200 sq ft, the home showcases striking black metal accents, soaring ceilings, and expansive gathering spaces. The newly remodeled chef's kitchen with Taj Mahal quartzite is worthy of a private chef preparing Michelin-level meals. Three distinct bars, a 1,000-bottle walk-in wine cellar, and a hidden speakeasy create an unforgettable entertaining experience rarely found in Ahwatukee. Seamless indoor-outdoor living, multiple fire features, and resort-style amenities complete this truly distinctive desert retreat.
From Chandler Blvd and Desert Foothills Pkwy. Turn North on Desert Foothills Pkwy. Summerhill will be on the right. Turn right into Community and take first right once inside the gate. Take to end of road and Cul-De-Sac
Dwelling Type: Residential
Subdivision: FOOTHILLS CLUB WEST PARCEL 15D
Year Built: 2006, County: N/A
From Chandler Blvd and Desert Foothills Pkwy. Turn North on Desert Foothills Pkwy. Summerhill will be on the right. Turn right into Community and take first right once inside the gate. Take to end of road and Cul-De-Sac
Listing is courtesy of Realty ONE Group
Sign in to your account to continue