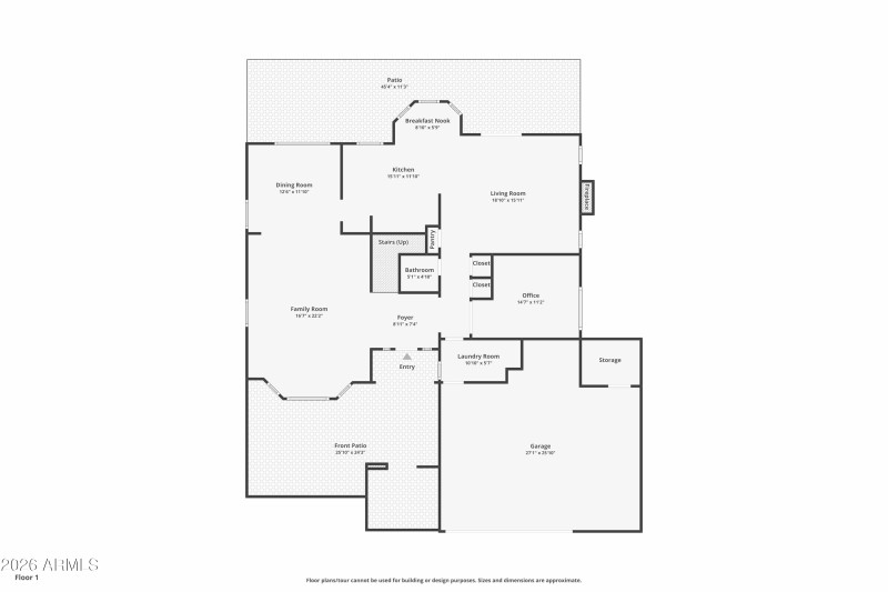
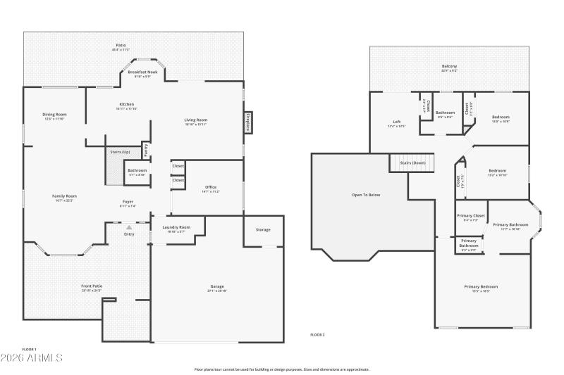
Beautifull recently upgraded home in the highly desirable Red Mtn Ranch Golf Community. This 2723 sq ft 4-bedroom, 2.5 bath home is perfectly situated on a premium North/South lot. (Be sure to review the list of major upgrades in the documents section). The main level features a spacious formal living and dining area with vaulted ceilings--ideal for entertaining. The updated kitchen includes granite countertops, an island with breakfast bar, and a black appliance package, and it opens to a cozy dining nook with a bay window and a large family room highlighted by a remodeled stone-wall electric fireplace. Down the hall, you'll find a private bedroom that can double as an office, game room, or fitness room, along with a convenient half bath.
Upstairs, the generous primary suite (MORE) includes a sitting area and a remodeled en-suite bath with double sinks, a tiled walk-in shower and a walk-in closet. Two additional large bedrooms, a spacious loft, and another remodeled full bath complete the upper level.
The private, resort-style backyard offers an oversized covered patio, a newly resurfaced pebble-sheen pool with water feature and heater, fresh landscaping, and a double gate--all on a quiet street. The 3-car garage features epoxy-coated flooring.
Be sure to review the list of major upgrades in the documents section.
This exceptional community offers amazing amenities and optional memberships, including access to a championship golf course, community pool & spa, tennis and pickleball courts, restaurant and patio bar, fitness center, walking and biking trails, basketball court, parks, and more. Minutes from shopping, dining, recreational areas like the Salt River and Saguaro Lake, and with easy access to Loop 202 for quick commuting.
Don't miss this one!
Head North on Recker, Right on Star Valley, Left on N Sapphire, Left on Snowdon, to the home on the Right.
Dwelling Type: Residential
Subdivision: RED MOUNTAIN ESTATES LOT 1-8 9-149 TR A-C
Year Built: 1987, County: N/A
Head North on Recker, Right on Star Valley, Left on N Sapphire, Left on Snowdon, to the home on the Right.
Listing is courtesy of Realty ONE Group
Sign in to your account to continue