Set behind a solar powered gated entrance and surrounded by nearly four acres of fully fenced desert beauty, this tri level residence offers privacy, panoramic mountain views, and an exceptional blend of comfort and versatility. Positioned on a corner lot with sweeping vistas in every direction, the home delivers a refined rural lifestyle with room to live, work, and create.
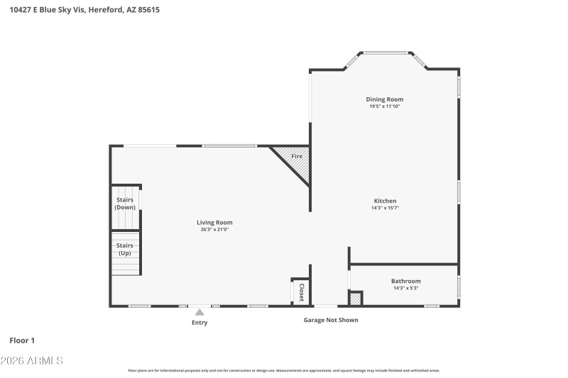
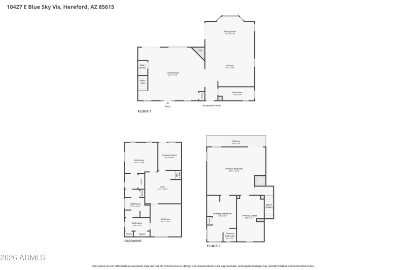
The main level welcomes you with a dramatic cathedral ceiling living room, a warm fireplace, and picture windows that frame the mountains and the beautifully maintained backyard. The spacious kitchen is designed for gathering and everyday ease, featuring granite countertops, a large island, a new built in microwave and electric oven, a gas cooktop, and extensive cabinetry that provides outstanding storage. A charmin A charming bay window breakfast nook overlooks the backyard and includes a built in storage bench, creating a perfect spot for morning coffee with a view.
The top level is dedicated entirely to the primary retreat. This private space includes a very large bedroom, a walk in closet that feels truly grand, and a spa inspired bath with a jetted soaking tub, a double vanity, and a large walk in shower.
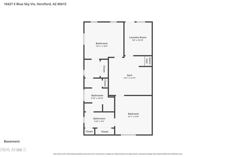
The lower level features two additional bedrooms connected by a Jack and Jill bathroom with a walk in shower. A versatile bonus room on this level can serve as a hangout space, office, playroom, or exercise room. The laundry room includes built in cabinetry for added convenience.
Outdoors, the property continues to impress with a block fenced backyard, a grass area, and a wrap around covered porch that captures the mountains from every angle. The covered front porch is equally inviting and offers a peaceful place to watch the sunrise over the Huachuca Mountains.
The extended length three car garage includes direct access to the home, a man door to the backyard, a second man door to the front porch, built in cabinets, and a water softener.
A major highlight of the property is the detached second building, currently set up as a music studio. This versatile structure features a wide open main space, several smaller rooms upstairs, a half bath, multiple mini splits, and its own septic system. It is ideal for creative work, a workshop, guest overflow, or future conversion. A Conex building with electric and cooling adds even more functional space.
Additional features include a private well, two septic systems, RV parking, natural desert landscaping, tile roof, dual pane windows, central air, and mini splits.
This is a rare opportunity to own a private view filled estate with multiple functional structures and endless possibilities under the wide open skies of Hereford.
From E Hereford Rd, turn South onto S Palominas Rd, the West onto E Blue Sky Vista
Dwelling Type: Residential
Subdivision: BARBARY ESTATES
Year Built: 2002, County: N/A
From E Hereford Rd, turn South onto S Palominas Rd, the West onto E Blue Sky Vista
Listing is courtesy of Keller Williams Southern AZ
Sign in to your account to continue