Custom built home/duplex in Midtown! Originally built in 1945, and completely re-constructed with owner-occupant integrity, featuring multi-generational accommodation.
All new sewer/plumbing infrastructure to city tap, completely new electric system, HVAC, interiors - even the old roof (including trusses) were completely replaced with a durable long-lasting metal roof.
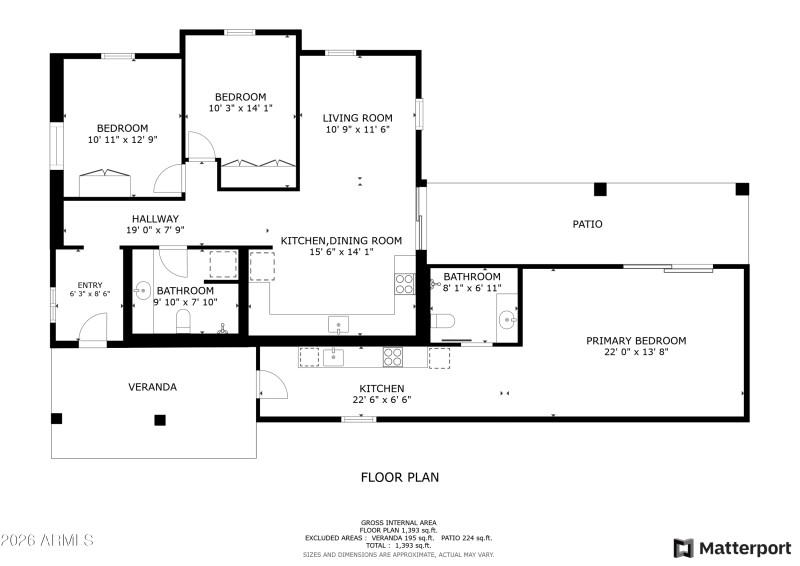
The home was redesigned into 2 distinct spaces (2 bed/1 bath & 1/1 to support varying living modalities. Both units include their own kitchens and laundry and be be lived independently of each other as a rental duplex, or multi-generational setup, Air BnB house w/guest house or just as a regular home with a great separate space to work or otherwise enjoy! The interiors are meticulously designed to be modern yet dura Both units open to the lush grass yard, replete with a larges covered patio space and separate fire pit. Additionally, a large detached structure with high ceilings and natural light and HVAC, and recessed lights is a perfect studio/yoga/art/future guest house?/flex space for even more on-site livability.
Location is fabulous, a residential setting, walking distance to a multitude of restaurants, art museums, light rail, great bike lane, commuter corridors and much more - come see this now!
North 2 blocks to Whitton Ave. East to property on north side of street.
Dwelling Type: Multiple Dwellings
Subdivision: ALAMO PLACE AMD
Year Built: 1945, County: N/A
North 2 blocks to Whitton Ave. East to property on north side of street.
Listing is courtesy of HomeSmart
Sign in to your account to continue