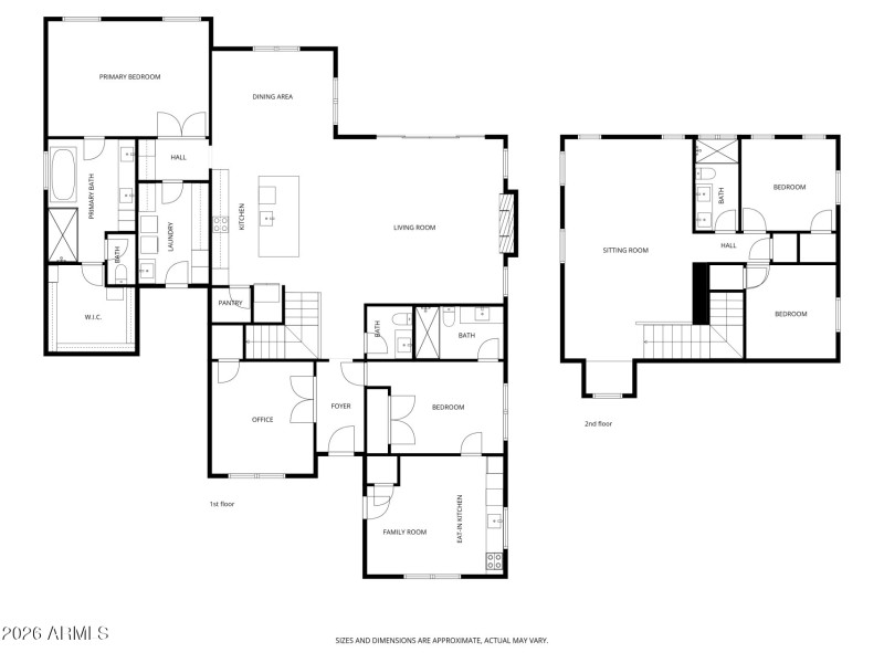
Experience modern luxury in this 2019-Craftsman-style home located in the heart of the Biltmore area. This rare find features a fully attached casita with private front entrance, perfect for guests or multi-generational living. Inside, discover a seamless open-concept floor plan with durable vinyl plank flooring throughout. The chef's kitchen is anchored by a massive quartz island, upgraded appliances, and a walk-in pantry, flowing effortlessly into a great room with a cozy gas fireplace. Large glass sliders reveal a backyard oasis designed for elite entertaining: an extended paver patio & pergola-covered living space, large outdoor kitchen with Teppanyaki flattop grill, gas grill, built-in fridge and ample countertop space and bar-top seating overlooking a sparkling pool w/ water feature Upstairs, enjoy a versatile bonus room with 2 bedrooms with walk-in-closets, full bathroom, loft with reading nook. The split floorplan boasts a primary suite with a spa-like bath, dual vanities, soaking tub & large walk-in closet.
South on 28th St., West on Turney Ave to property on the south side of the street.
Dwelling Type: Residential
Subdivision: CITRUS HEIGHTS LOTS 1-9
Year Built: 2019, County: N/A
South on 28th St., West on Turney Ave to property on the south side of the street.
Listing is courtesy of HomeSmart
Sign in to your account to continue