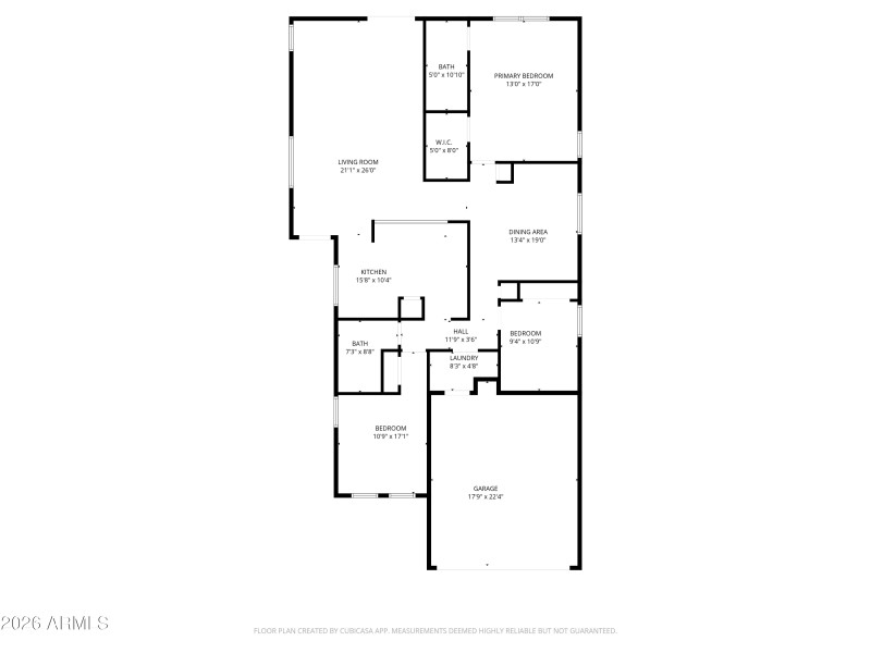
Spacious single-story home featuring 3 bedrooms, 2 bathrooms, and a 2-car garage with a functional and inviting layout. The kitchen offers ample cabinet and counter space and opens to the main living area, creating a comfortable flow for everyday living and entertaining. The primary suite includes an en-suite bathroom and generous closet space. Additional bedrooms provide flexibility for guests, office, or hobbies. Enjoy the backyard with space to relax or entertain. Great opportunity with plenty of potential!
Take I-10 west to Watson Rd → go south on Watson Rd → right on Southern Ave → left on Sunrise Way → home on the right.
Dwelling Type: Residential
Subdivision: SUNSET POINT
Year Built: 2004, County: N/A
Take I-10 west to Watson Rd → go south on Watson Rd → right on Southern Ave → left on Sunrise Way → home on the right.
Listing is courtesy of Mainstay Brokerage
Sign in to your account to continue