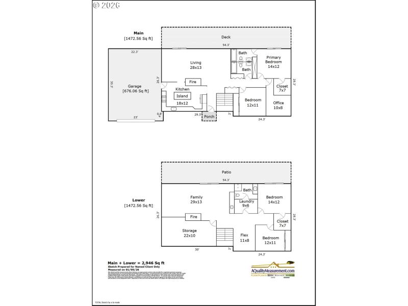
Nestled in the sought after Maplewood Park neighborhood, this light and bright 4 bedroom, 3 bath daylight ranch offers privacy, flexibility, and serene natural surroundings. Tucked away on a quiet dead end street, the home overlooks peaceful greenspace, woodlands, and a tranquil pond, creating a true retreat-like setting. The main level features an easy flowing, open concept living and dining area filled with natural light, a beautifully remodeled kitchen completed in 2019, and a spacious primary suite with walk in closet, ensuite bath, and direct access to the expansive deck. A den or home office and an additional bedroom on the main level provide ideal work from home or guest space. Downstairs, a full separate living area includes a large family room, flexible bonus space, two additional bedrooms, laundry, and an oversized storage room, making this home well suited for multi generational living or extended guests. Enjoy extensive decking and a serene outdoor space perfect for relaxing or entertaining. Major updates include furnace, air conditioning, and water heater replaced in 2021, a new roof in 2025, and refrigerator included. Ample storage throughout completes this thoughtfully updated home. Conveniently located just minutes from Downtown Hillsboro and Orenco Station, with easy access to local favorites like McMenamins Cornelius Pass Roadhouse, nearby parks, and the Hillsboro Hops at Gordon Faber Recreation Complex. Close to Hillsboro High School, Intel’s Ronler Acres campus, Nike World Headquarters, Topgolf, the Washington County Fairgrounds, and popular pickleball courts. A quiet retreat with the space and versatility to adapt to every stage of life, you won't want to miss this! Back on market at no fault of the Seller. HES Report: https://us.greenbuildingregistry.com/green-homes/OR10243056 [Home Energy Score = 4. HES Report at https://rpt.greenbuildingregistry.com/hes/OR10243056]
East Main St. to SE 26th Ave
Dwelling Type: Residential
Subdivision: N/A
Year Built: 1973, County: US
East Main St. to SE 26th Ave
Listing is courtesy of Hustle & Heart Homes
Sign in to your account to continue