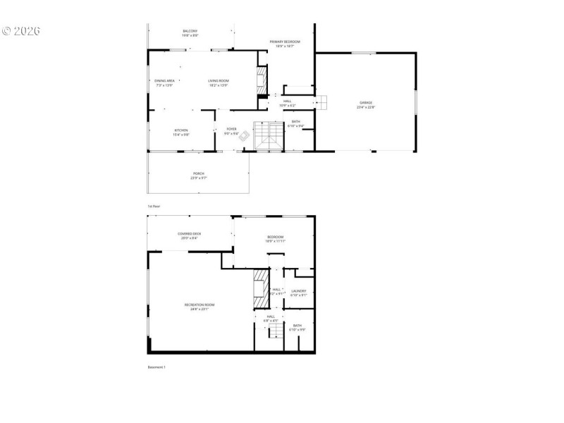
Ocean & city views, privacy, and flexible living space — all wrapped into this well-maintained two-level home in Gold Beach.Upstairs welcomes you with a warm pellet stove, zoned heating, and an open living/dining layout featuring a slider to a balcony with ocean and city views. The kitchen offers granite countertops, tile backsplash, eating bar, new dishwasher (with internal light), and new microwave. Built-in corner TV stand adds function, while the fireplace provides additional character (not used by current sellers). One bedroom with dual closets and a full bath with unique redwood walls complete the upper level. Attached 2-car garage for convenience.Downstairs offers even more flexibility with a second bedroom (dual closets) and slider to the lower covered porch — also capturing ocean and city views. Full bath with stand-up shower, hallway laundry (washer & dryer included), and extra storage closet. The spacious bonus room with its own fireplace and sliding doors to the porch is currently used as storage/bedroom space but could easily serve as a family room, guest quarters, office, hobby space, or more.Enjoy privacy, quiet surroundings, visiting birds, deer, and even elk. Small fully fenced front yard for pets. Public utilities.Sale contingent upon seller’s successful close of replacement property.
Hwy 101 to 6th st, Turn right before the substation, up hill to property
Dwelling Type: Residential
Subdivision: N/A
Year Built: 1973, County: US
Hwy 101 to 6th st, Turn right before the substation, up hill to property
Listing is courtesy of eXp Realty, LLC
Sign in to your account to continue