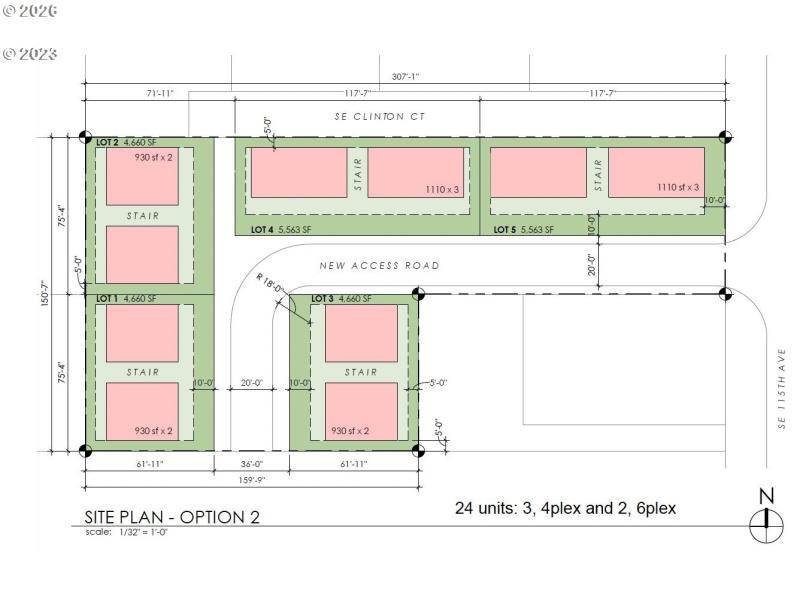
An extraordinary development opportunity awaits at 2737 SE 115th Ave, Portland, OR! Combination of two tax lots. Currently, only one structure stands, offering the choice to either demolish or maintain for rental income, generating $1,800 per month on a flexible month-to-month lease. You have the option to retain the tenant, securing income while finalizing permits or begin fresh with your vision. Seller can deliver the property vacant if requested. What sets this property apart is the substantial groundwork that's already been completed, saving you valuable time and financial resources. However, the potential doesn't stop there; this property offers more than one avenue for development, with possibilities ranging from 16 to 36 units. Location is key, and this property enjoys a prime position close to Division Street and the Trimet Bus line, ensuring accessibility and convenience. Moreover, the area has seen a surge in new residential infill projects, highlighting its desirability and growth potential. Buyers are encouraged to conduct their due diligence, exploring the many opportunities this property offers. Whether you're an experienced developer or a newcomer to the real estate scene, this property's pre-established groundwork, versatility make it a rare find. [Home Energy Score = 4. HES Report at https://rpt.greenbuildingregistry.com/hes/OR10222321]
115th and Division
Dwelling Type: Residential
Subdivision: N/A
Year Built: 1942, County: US
115th and Division
Listing is courtesy of eXp Realty, LLC
Sign in to your account to continue