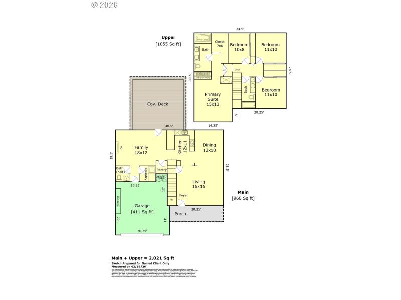
Move in ready 4BR/2.5 BA home in Heron Meadows located in a quiet neighborhood with open skies and a small town feel. East facing front door and a large backyard that gets great evening light. You will love the big backyard ideal for gardening, relaxing, and entertaining. Functional layout with space to spread out or create cozy areas. Covered front porch leads to a side stairwell with a private primary suite upstairs plus three additional rooms that work well for bedrooms, a home office, or hobby space. Good storage throughout and a great value for the size and yard. Located 5 minutes from Historic Downtown Scappoose, 10 minutes to the airport, 30 minutes to Rock Creek, and under an hour to PDX. Hurry, must see!
Miller Rd and Columbia Ave
Dwelling Type: Residential
Subdivision: Heron Meadows
Year Built: 1999, County: US
Miller Rd and Columbia Ave
Listing is courtesy of Keller Williams Sunset Corridor
Sign in to your account to continue