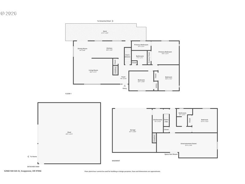
Proudly situated on a corner lot in Scappoose, this spacious ranch-style home offers versatility, comfort, and incredible functionality for multi-generational living. The main level features a generous living room with a cozy fireplace, a dining room conveniently located just off the kitchen, and a well-appointed kitchen with abundant cupboard space for effortless storage and organization. Three bedrooms are located on the main floor, including a primary suite with its own en suite bathroom, along with an additional full bath for guests. Downstairs, the fully finished basement offers exceptional flexibility with a separate kitchen, full bedroom, full bathroom, and a bonus/flex room with its own fireplace—ideal for in-law quarters, extended living, or private guest space. Step outside to enjoy the patio just off the back door, perfect for outdoor dining and entertaining. In addition to the attached two-car garage, the property boasts a massive three-bay shop/garage, providing outstanding space for hobbies, storage, recreational vehicles, or a home-based business. This is a rare opportunity to own a property that blends small-town charm with the space and adaptability today’s buyers are searching for.
From US-30, turn onto Old Portland Rd, then right on 5th St, left on 6th St to property.
Dwelling Type: Residential
Subdivision: N/A
Year Built: 1976, County: US
From US-30, turn onto Old Portland Rd, then right on 5th St, left on 6th St to property.
Listing is courtesy of Opt
Sign in to your account to continue