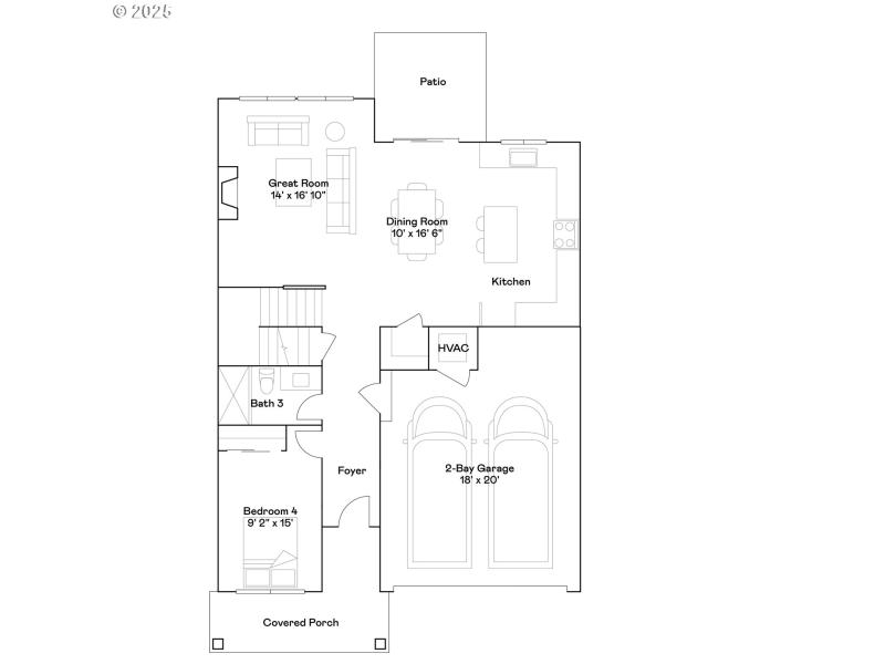
This new construction home is located in Henshaw Farm, offering convenient access to Simpson Park, Linn-Benton Community College, downtown historic Albany, and the Golf Club of Oregon, all within a 16-minute drive. The Jade plan features a welcoming first floor with an open-concept kitchen, dining room, and great room that extends to a covered patio. A secondary bedroom and full bath on the main level are perfect for guests, while upstairs includes two more bedrooms, a spacious bonus room, and the primary suite with an en-suite bathroom featuring a soaking tub and separate shower, dual vanities, and walk-in closet. Interior highlights include quartz countertops, shaker-style cabinets, LVP (luxury vinyl plank) in the kitchen and entry, LVT (luxury vinyl tile) in the bathrooms, two-tone paint, and a fireplace with floating mantle. This home also includes central air conditioning, a refrigerator, washer and dryer, and blinds—all at no extra cost! Located on homesite 141. Rendering of front of home is artist conception only; flooring and cabinetry images are from a similar home and show the finishes buyers can expect in this property. *Incentives available with the use of our preferred lender!*
Knox Butte Rd to Timber Ridge St, R on Hackamore Ct., Left on Withers Ct
Dwelling Type: Residential
Subdivision: HENSHAW FARM
Year Built: 2026, County: US
Knox Butte Rd to Timber Ridge St, R on Hackamore Ct., Left on Withers Ct
Listing is courtesy of Lennar Sales Corp
Sign in to your account to continue