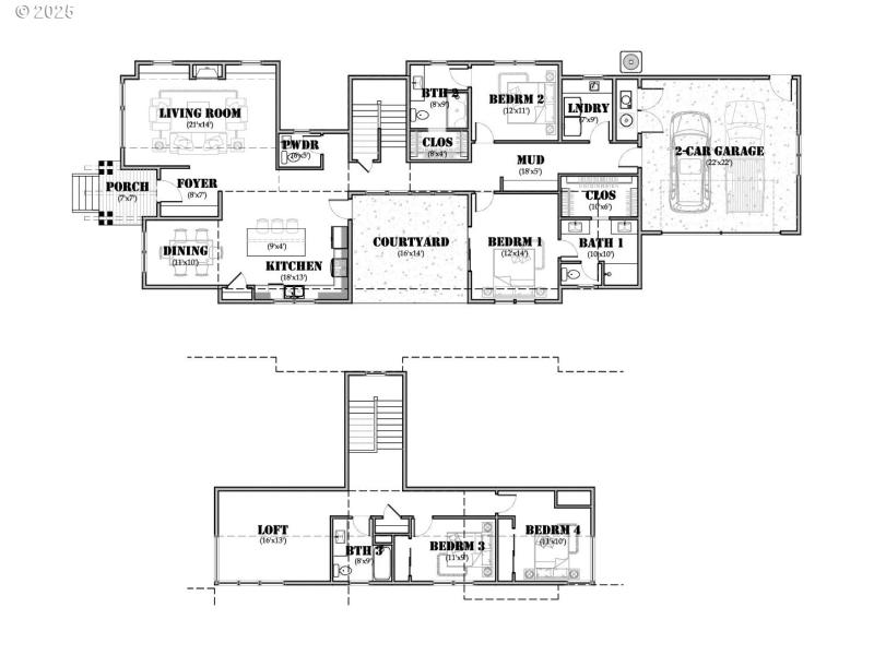
Welcome to Rock Creek Lot 6 located in the newest neighborhood in Hood River, where thoughtful design meets everyday comfort. This 4-bedroom, 3.5-bathroom home offers versatile living with two primary-style suites on the main level, each featuring walk-in closets and connected bathrooms. Upstairs, you’ll find two additional bedrooms and a spacious loft—perfect for a home office, playroom, or second living space. The heart of the home surrounds a private courtyard, ideal for indoor-outdoor living and entertaining. An open-concept living room, dining area, and kitchen make hosting and daily life seamless, while a mudroom and 2-car garage add convenience. Enjoy a welcoming front porch entrance and an ideal location just minutes from all that Hood River has to offer—outdoor adventure, local shops, and great dining—with the added bonus of beautiful surrounding views.
Off of Rocky rd
Dwelling Type: Residential
Subdivision: Rock Creek
Year Built: 2025, County: US
Off of Rocky rd
Listing is courtesy of Curtis Homes Realty
Sign in to your account to continue