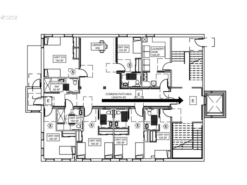
Presenting a one-of-a-kind historic asset with exceptional redevelopment and income potential. Built in 1914, this iconic former City Hall, Courthouse, and Fire Department has been fully remodeled from the ground up and is now turnkey, ready for its next chapter.Spanning 13,000+ square feet, the property features a brand-new infrastructure, offering modern systems while preserving the character and presence of a landmark building. The recent renovation was completed with use as a residential care facility in mind, creating immediate potential for RTF, memory care, assisted living, or similar licensed operations. The layout and scale also lend themselves well to a bed & breakfast, boutique motel, or other commercial uses, providing investors with multiple viable exit strategies.Strategically located in the heart of downtown Woodburn, the property benefits from excellent visibility and accessibility—just minutes from I-5 and the Woodburn Premium Outlets, a major regional draw.This is a rare opportunity to acquire a fully upgraded, historically significant building with flexible use, strong fundamentals, and long-term income potential in a growing market.
N First st and W Lincoln st
Dwelling Type: Residential
Subdivision: N/A
Year Built: 1914, County: US
N First st and W Lincoln st
Listing is courtesy of Premiere Property Group, LLC
Sign in to your account to continue