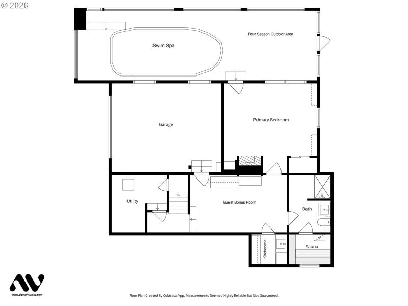
Located in sought-after King’s Heights, this NW Contemporary home offers sweeping views of the city, river, and mountains, just minutes from Portland’s most vibrant cultural destinations. Designed by the Paolo Design Group, the home has been reimagined since 2012 with a focus on quality construction, thoughtful design, and long-term performance. The exterior features custom clear cedar tongue-and-groove siding, enhanced architectural shingles installed with a reduced reveal for extended lifespan, integrated drainage, and continuous ventilation. Two levels of view-facing decking (1410sqft / 400sqft) create exceptional outdoor living and entertaining space, with stainless steel cable railings preserving sightlines and natural gas hookups for future outdoor features. Inside, Brazilian walnut hardwood floors run throughout, complemented by solid wood interior doors, custom millwork, and extensive recessed lighting on dimmers. The kitchen is designed for both daily use and entertaining, featuring granite countertops, premium built-in appliances, soft-close cabinetry with pull-out organizers, a wine cooler, food-warming drawer, and built-in gas range. The primary suite offers panoramic views, a gas fireplace, private deck access, and a spacious ensuite with heated tile floors, a soaking tub, large walk-in shower with dual heads, and a custom walk-in closet. Additional bedrooms are thoughtfully designed with blackout window treatments and organized closets. The lower level provides flexible living with a private guest or multi-gen suite, kitchenette, dry sauna, gas fireplace and a four-season enclosed fitness space with swim spa. A glass garage door opens to the views, creating a seamless indoor-outdoor experience. Set on a corner lot, the property offers a level backyard, mature landscaping, water features, and an oversized garage with EV charging and storage. A rare opportunity to own a meticulously rebuilt home in one of Portland’s premier hillside neighborhoods. [Home Energy Score = 5. HES Report at https://rpt.greenbuildingregistry.com/hes/OR10244099]
NW Albemarle Terrace & NW Roanoke Street
Dwelling Type: Residential
Subdivision: KINGS HEIGHTS
Year Built: 1949, County: US
NW Albemarle Terrace & NW Roanoke Street
Listing is courtesy of Keller Williams Realty Portland Premiere
Sign in to your account to continue