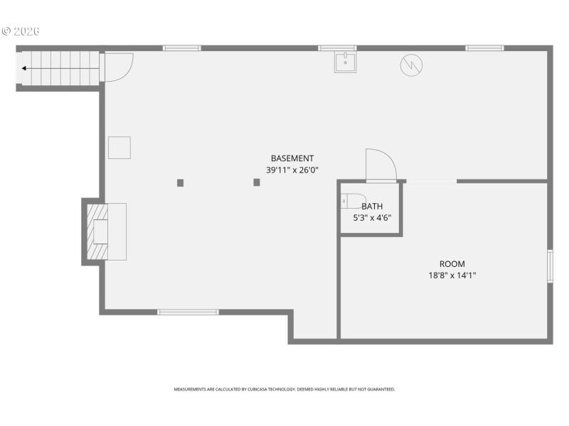
Unlock the potential of this classic mid-century home in a desirable West Slope neighborhood in unincorporated Washington County with a Portland address. Featuring 3 bedrooms and 1.5 bathrooms, this home offers original architectural details and a spacious layout ready for your personal touch. The original hardwood floors are a compliment to authentic style of this home. The large windows bring in abundant natural light, and the open living and dining areas showcase mid-mod charm with a fireplace as the focal point. The unfinished basement is blank slate to make it your own space (game room, multigenerational living, etc) with some plumbing plus a fireplace. The generous lot has ample space for outdoor enjoyment. The 2nd detached garage provides space for a shop area or toys storage. The location places you near top-rated schools, parks, shopping, and easy access to downtown. Whether you're looking to move in now and enjoy the late 50's vibe or update it, this home is an incredible opportunity to create your dream space.
from Portland, to Sunset Hiway/US 26, take exit 71A onto Canyon Rd, left on Canyon Lane tp property
Dwelling Type: Residential
Subdivision: N/A
Year Built: 1959, County: US
from Portland, to Sunset Hiway/US 26, take exit 71A onto Canyon Rd, left on Canyon Lane tp property
Listing is courtesy of Portland Digs
Sign in to your account to continue