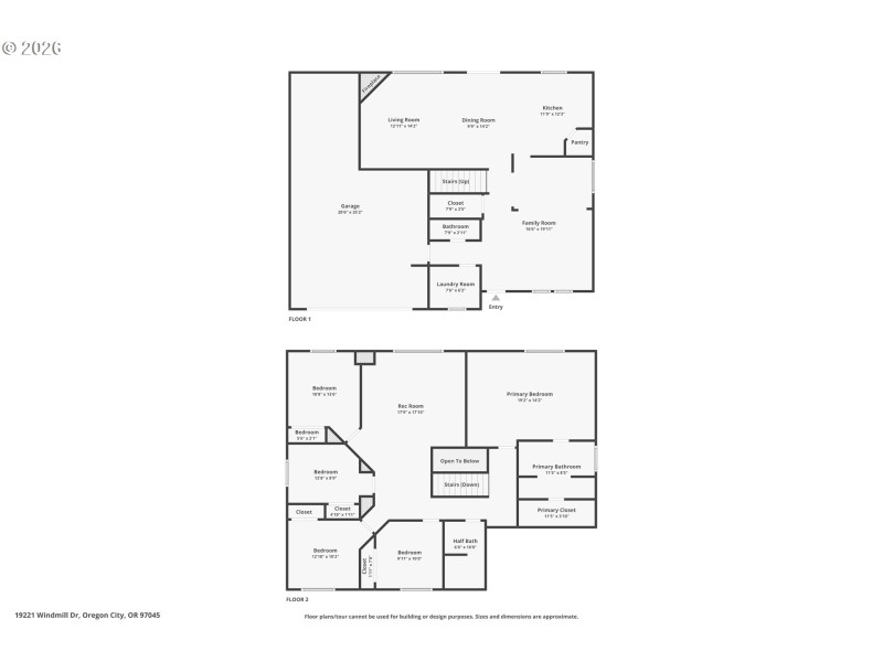
Welcome to 19221 Windmill Dr, Oregon City, OR 97045—a spacious and fun-filled property offering room to live, play, and entertain! This inviting 5-bedroom, 2.5-bath home provides the perfect blend of comfort and versatility, ideal for households of all sizes. Step inside to discover a well-designed layout with generous living spaces, abundant natural light, and plenty of room for gatherings both large and small. The kitchen flows seamlessly into the dining and living areas, creating a warm and functional heart of the home. Upstairs and down, you’ll find five well-proportioned bedrooms, offering flexibility for guest rooms, home offices, or hobby spaces. The primary suite provides a relaxing retreat, complete with its own private bath. Outside is where this property truly shines. The expansive backyard is ready for adventure and unforgettable memories, featuring a private zip line—a rare and exciting bonus that sets this home apart! Whether you’re hosting summer get-togethers or simply enjoying the outdoors, this space delivers. Additional highlights include RV and boat parking, giving you the freedom to bring all your toys without compromise, plus ample driveway and storage space for convenience. Located in a desirable Oregon City neighborhood with easy access to local amenities, parks, and commuting routes, this home offers a unique combination of space, functionality, and fun.
GPS Friendly
Dwelling Type: Residential
Subdivision: N/A
Year Built: 1999, County: US
GPS Friendly
Listing is courtesy of JMG - Jason Mitchell Group
Sign in to your account to continue