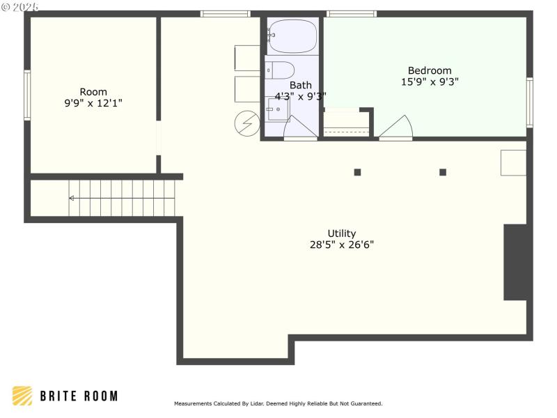
Beautifully Renovated in 2023! This Mid-century 1953 Ranch w/Full Lower level in coveted and hip FoPo (Foster-Powell) neighborhood! This home has been recently remodeled with modern style and upgrades. Upgrades in 2023 include new roof/gutters, Siding, Electrical Panel, Wiring, Gas Furnace & Hot Water Heater, Renovated Kitchen and two Full Bathrooms! Fully fenced front yard & backyards ideal for pets and little humans. The very spacious back yard features a large detached covered patio for year-round outdoor enjoyment, a storage shed, gardening space and your very own apple tree! The renovated kitchen features beautiful granite slab countertops, tiled backsplash, stylish white shaker cabinetry, and stainless steel appliances. Lower level offers great open hangout space, Laundry Room, storage, and Bonus Room, and non-conforming 4th Bedroom or Office! Great potential to convert lower level to ADU/Separate Living area or Multi-generational use. Convenient location located just 3 blocks to Essex park with Tennis/Pickelball & Basketball courts, 11 blocks to Portland Pickles Games, FoPo commercial district eats and drinks(Pizza Otto & many more!), and 1 block to Eastport Plaza with Cinema, sushi, ramen, dim sum, and the newly opened Hong Phat Asian Supercenter & Food court! Loads of bonus space and ideal for multi-generational buyers and ADU possibilities. Great little neighborhood with tight community an annual Block Party! Don't let proximity to 82nd Avenue fool you, Home is 1 full block away and 82nd "activity" is very low-impact in this location! Check low crime rate stats online! Also, Portland's 82nd Avenue Improvement Project is currently in full-swing!!
80th/Holgate to 80th, North to Boise, East to Property
Dwelling Type: Residential
Subdivision: FOSTER-POWELL NEIGHBORHOOD
Year Built: 1953, County: US
80th/Holgate to 80th, North to Boise, East to Property
Listing is courtesy of MORE Realty