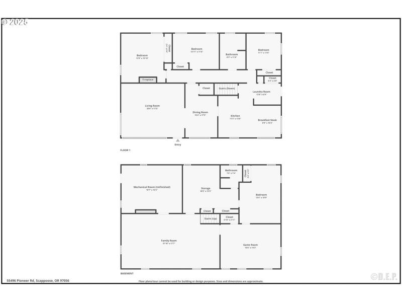
The property offers a rare combination of productive farmland, classic outbuildings, and rural privacy just minutes from town. This 43.89-acre property includes rich, usable acreage ideal for livestock, crops, or equestrian pursuits. Two well-maintained barns feature a hay loft, equipment storage, and flexible space for animals or agricultural use. A dedicated mechanic’s shed provides the perfect setup for repairs, projects, or hobby work. Pastures are fenced and cross fenced. Land has been hayed in the most recent past. The two-level 3,185 sq ft farmhouse offers 4 bedrooms, 2 baths, and plenty of room for gatherings after a day’s work. Surrounded by open fields, the setting is peaceful yet conveniently close to Scappoose amenities, schools, and Hwy 30 access. Whether you’re expanding an existing operation or starting fresh, this property’s size, infrastructure, and location make it a rare find in Columbia County. Please no drive bys. Schedule a private showing to view all this property has to offer.Bring your vision—this is more than a home, it’s a working farm, a lifestyle, and a legacy waiting to be built.
Hwy 30 to Scappoose Vernonia Hwy, R on Pioneer Rd to home
Dwelling Type: Land
Subdivision: N/A
Year Built: N/A, County: US
Hwy 30 to Scappoose Vernonia Hwy, R on Pioneer Rd to home
Listing is courtesy of RE/MAX Powerpros