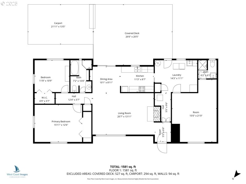
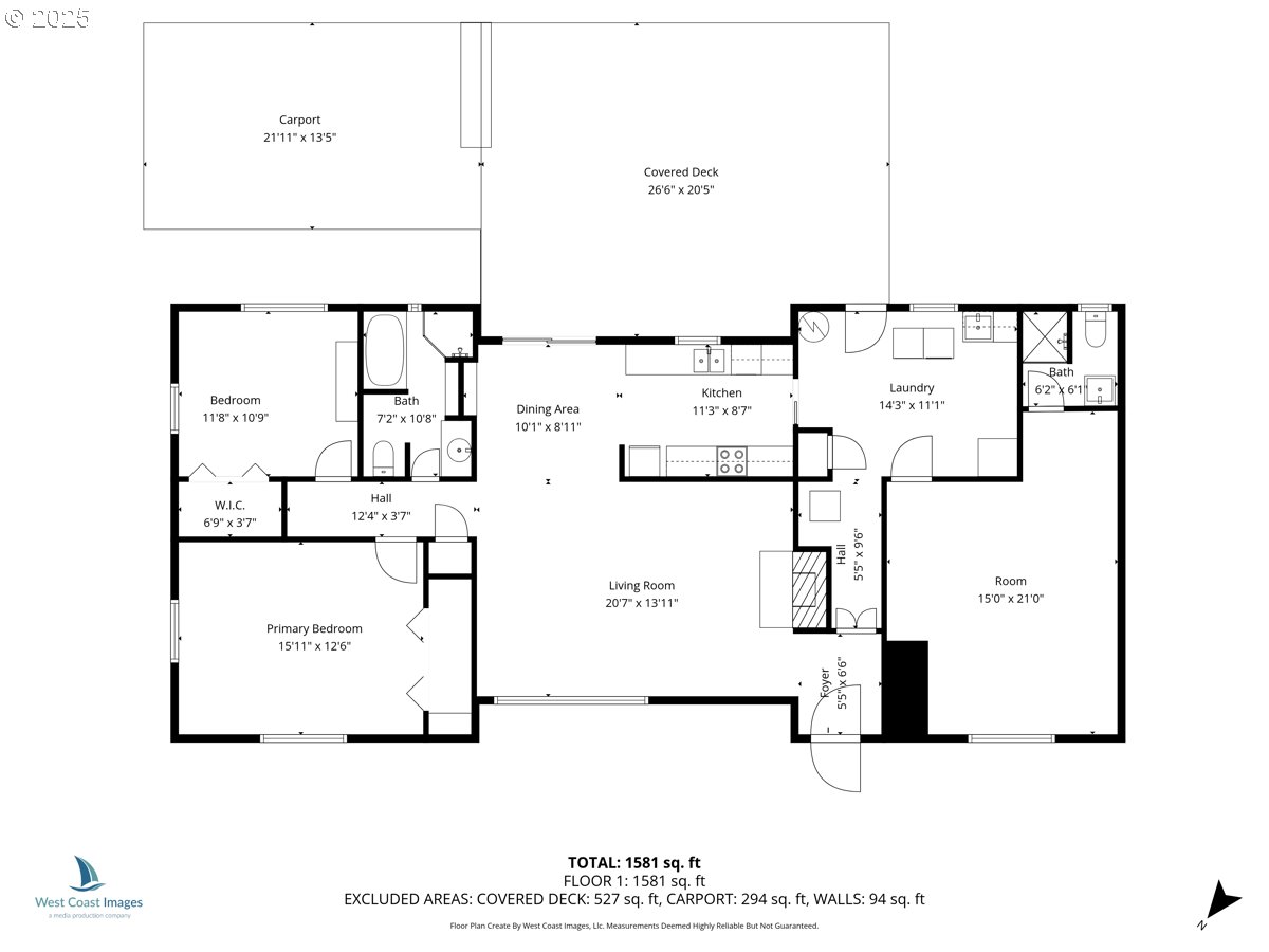
Charming Ranch-Style Home on 31.77 Acreage with Creek Frontage, Forested Land & Timber Value. This well-kept ranch-style home offers the perfect blend of peaceful country living and in-town convenience. Located just minutes from town, this property showcases pride of ownership, all on a picturesque slice of countryside. Interior Features: Spacious galley kitchen and solid wood cabinetry—ideal for the home cook. Cozy living room with pellet stove and an oil furnace for year-round comfort. Flexible floor plan includes a potential master suite with private bathroom and separate entrance—perfect for guests, extended family, or a rental unit. Recent Upgrades: New roof installed in 2022 on both the home and the shop. Covered patio and carport provide outdoor shelter and entertaining space. Detached shop with ample workspace and extra storage area on the side used for storing wood. Established orchard Garden space supported by irrigation rights, fenced pasture with a 30' x 20' pole barn for hay, tools, or equipment. Pasture previously used for hay production—great for hobby farming or supplemental income with the pastureland featuring a haybarn with 2 corrals. Second oldest water rights in the area, with irrigation pods and 2 irrigation pumps ready to go. Outdoors Lifestyle & Timber Potential: A serene creek runs through the property, with 19 acres of Timber accessible across the creek-ideal for hiking, hunting, wildlife watching, or simply enjoying nature Timber cruise on file (as of December 2024) estimates over $200,000 in standing timber value—providing a unique opportunity for selective harvest income Whether you're seeking a forever home, a small homestead, or a private retreat with income potential, this property offers incredible versatility and natural beauty. Schedule your private showing today and experience the best of country living!
i-5 Exit 108 towards Myrtle Creek, Left On Riverside, Keep Right on South Myrtle
Dwelling Type: Residential
Subdivision: N/A
Year Built: 1967, County: US
i-5 Exit 108 towards Myrtle Creek, Left On Riverside, Keep Right on South Myrtle
Listing is courtesy of Trueblood Real Estate
Sign in to your account to continue