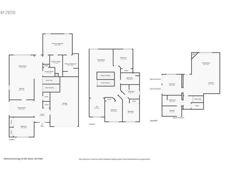
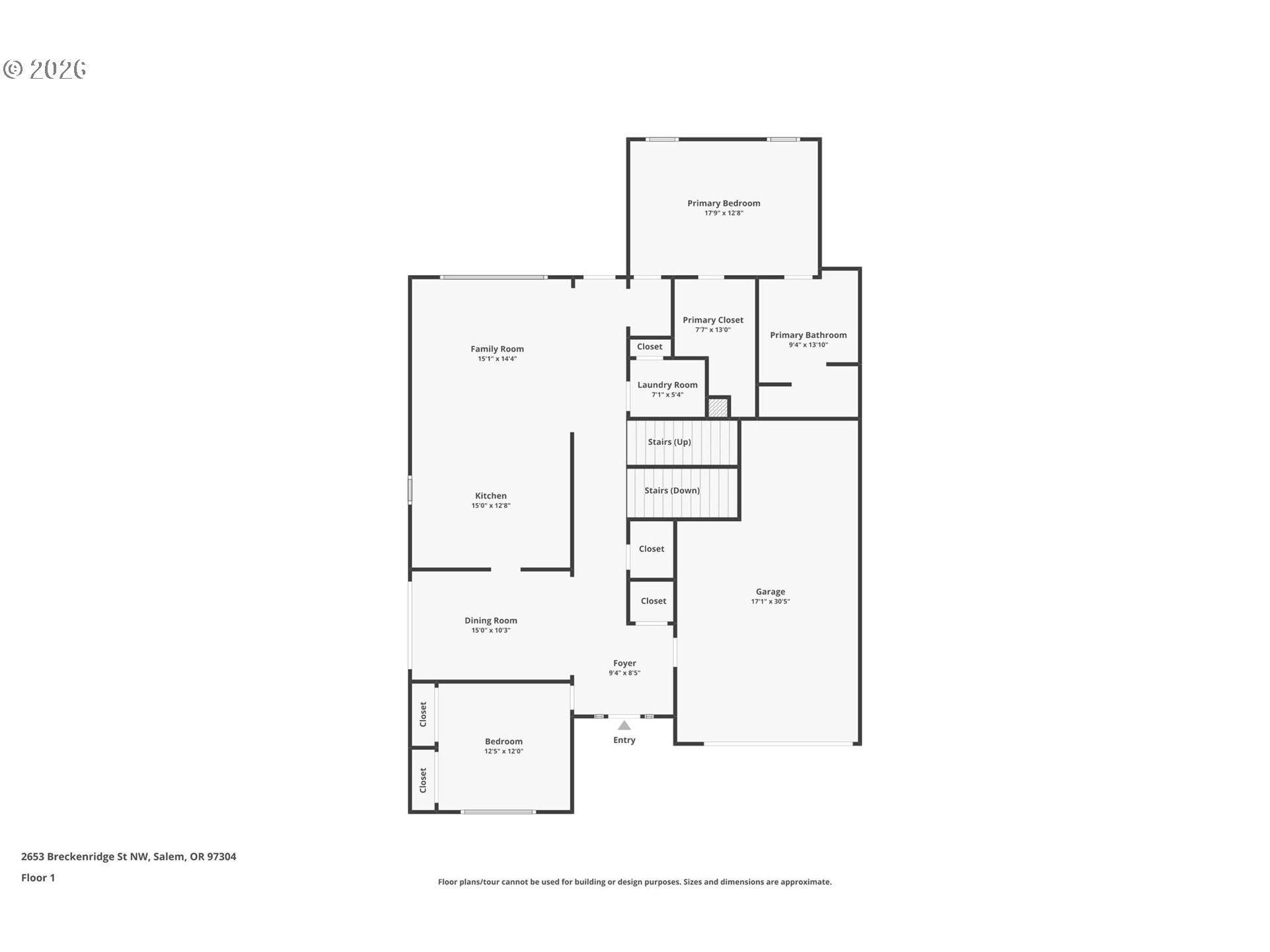
Welcome Home! Designed for dual or multi-generational living w/space to be together while still enjoying privacy. The lower level offers separate living quarters with kitchenette—ideal forextended living, guests, or flexible use. Detail in flooring, crown molding, brocade ceilings add warmth and character throughout. Enjoy outdoor living from THREE separate decks.Oversized garage plus ample driveway space for RV/boatparking. Seller has secured replacement property and is ready to move forward. No HOA!
Lower Breckenridge
Dwelling Type: Residential
Subdivision: N/A
Year Built: 2006, County: US
Lower Breckenridge
Listing is courtesy of eXp Realty, LLC
Sign in to your account to continue