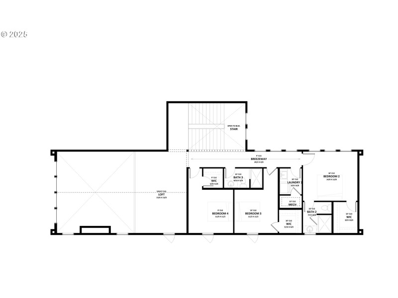
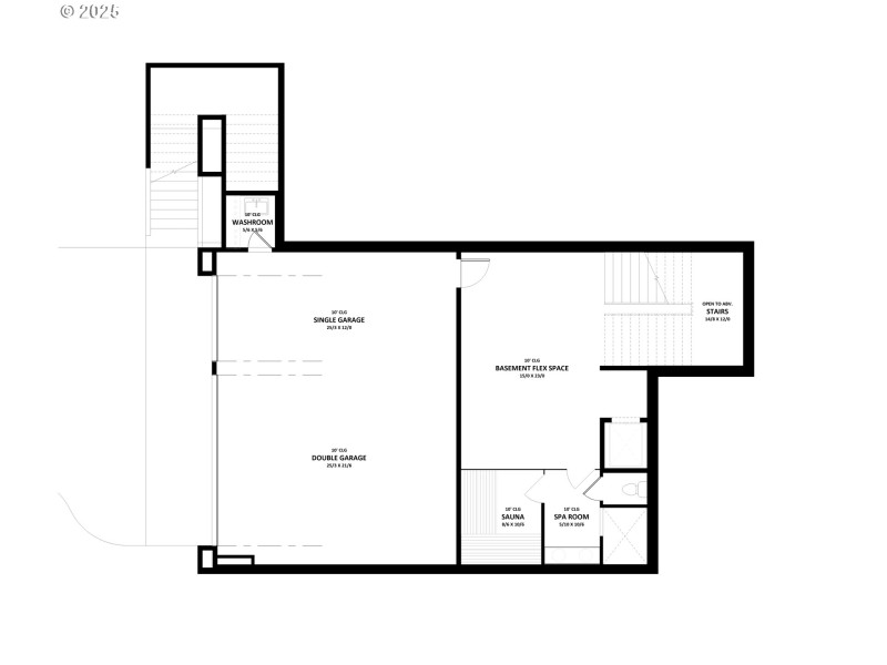
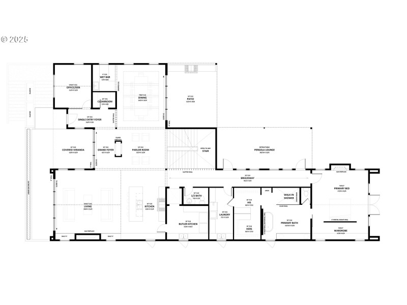
Step into the future of luxury living at Serres Farms – the exclusive site of the 2026 Street of Dreams, hosted by Icon Construction and Development.Icon Construction & Development proudly presents their showcase home: a Scandinavian-inspired masterpiece set on a rare .55-acre homesite with sweeping views into Portland and sprawling, professionally landscaped front and back yards.Indoor Living:Designed to impress and built for modern living, this residence features 4 bedrooms and 4.5 baths, including a main-level primary suite with his & hers vanities. A chef’s prep kitchen, butler’s pantry, wet bar, private gym, rejuvenating sauna, and breezeway with floor-to-ceiling windows elevate the everyday, while two dramatic fireplaces anchor the home with warmth and style. Walls of glass capture natural light and frame the beauty of the community’s most anticipated development.Outdoor Living:Beyond its walls, the home opens to covered verandas, a pergola lounge, and an outdoor dining area with built-in gas range. Expansive lawns and a signature fire feature create an unparalleled setting for entertaining and relaxation alike.Currently in for permits with construction beginning this fall and completion anticipated spring 2026, this is your opportunity to secure an extraordinary property before it graces the spotlight of the 2026 Street of Dreams. Early buyers will enjoy the rare chance to customize selections and put their personal touch on an Iconic show home destined to become a local landmar
right on Pomidor to Kaylyn
Dwelling Type: Residential
Subdivision: N/A
Year Built: 2026, County: US
right on Pomidor to Kaylyn
Listing is courtesy of Handris Realty Co.