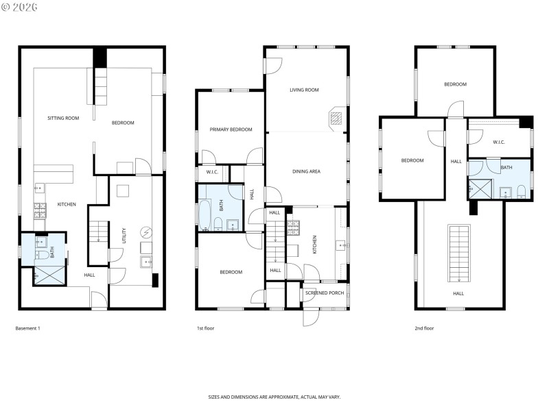
Unique opportunity to own a sprawling craftsman on corner lot in Arbor Lodge!Freshly painted interior with vintage details and artistic touches throughout.Wood floors, vintage moldings, built-ins and craftsman charm at every turn. Updated bathrooms (3 full, one on each level) and Vintage white kitchen w/ butcher block counters; true upper level with 2 bedrooms, large walk-in closet, full bath, built-in bookshelves and skylights; covered front and back porches; mature gardens and so much more! Lower level features separate entrance to 2nd kitchen, full bath and open living/family room and sleeping/office/bonus area- endless opportunity to use as family room, rental, office space, caregiver quarters or multi-gen opportunity. Lovely exterior with mature gardens featuring Persimmons,Figs, Rhubarb, Blueberries and Kiwis; brick patio, covered front and back porches; bike storage and more. Don't let the photos fool you- even without the tax lot next door this home sits on a 5,450 sq ft corner lot- its lovely! Super special package you'll want to see in person to truly appreciate.And all with close proximity to University of Portland, gorgeous city parks and Arbor Lodge/ Overlook amenities. [Home Energy Score = 1. HES Report at https://rpt.greenbuildingregistry.com/hes/OR10244274]
Willamette Blvd to Vincent on corner of Vincent and Holland
Dwelling Type: Residential
Subdivision: ARBOR LODGE
Year Built: 1927, County: US
Willamette Blvd to Vincent on corner of Vincent and Holland
Listing is courtesy of RE/MAX Equity Group
Sign in to your account to continue