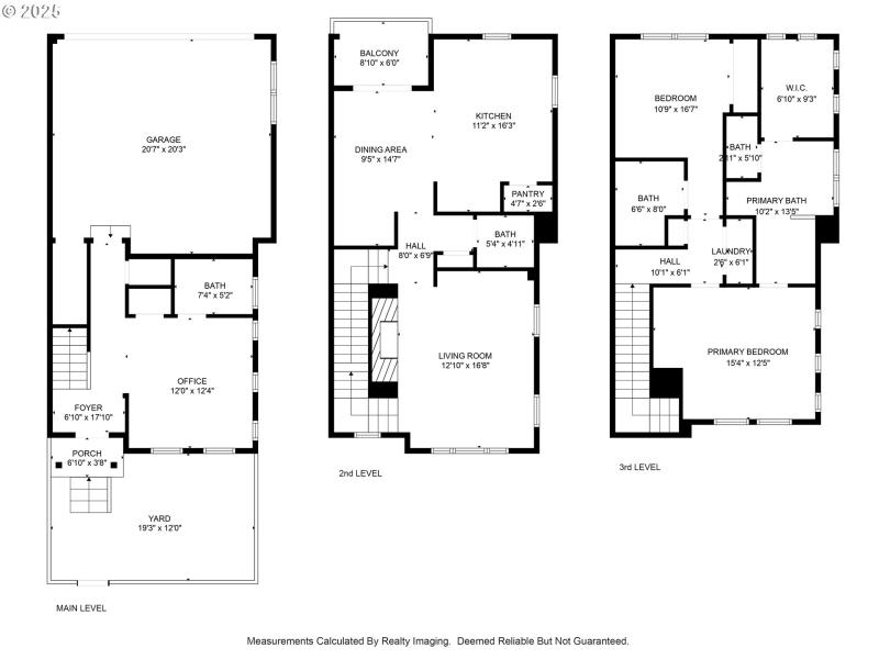
Nice Orenco townhome. Double master bedrooms, Gas heat/AC, open floor plan with high ceilings and spacious kitchen, 3rd bedroom/den on main floor, 2 car garage, close to Max, restaurants, and Noble Woods Park. Home energy score can be found here: https://rpt.greenbuildingregistry.com/hes/OR10241298 [Home Energy Score = 7. HES Report at https://rpt.greenbuildingregistry.com/hes/OR10241298]
131st to Alder
Dwelling Type: Residential
Subdivision: N/A
Year Built: 2003, County: US
131st to Alder
Listing is courtesy of Keller Williams Realty Portland Elite