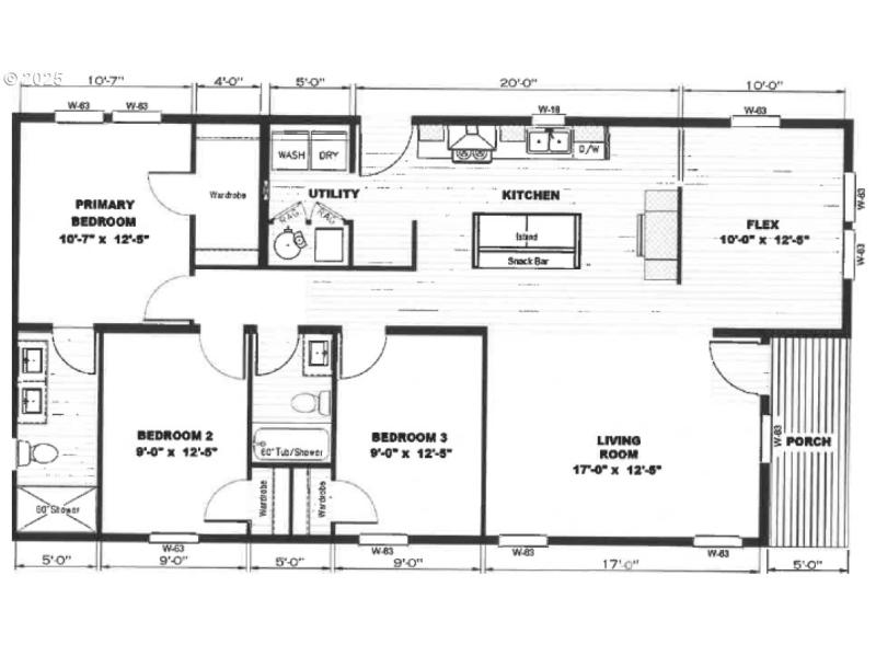
This modern day 1306 sf energy efficient home is designed for today’s fast paced lifestyle! With an open concept layout, featuring 3 bedrooms with a private primary suite, & 2 full baths, it offers smart space, comfort & style! The spacious kitchen features an island, & thoughtful storage making every day living easy. Features Argon Gas Low-E windows. This charming home is tucked away on a paved private drive with a 2-car carport & paved driveway offering peace & privacy adjacent to Fern Park & just minutes from Fern Ridge Lake. Plus, a 5 Yr Home Protection Plan &, a Builder Credit! A must see for the discerning home buyer!
West on Hwy 126, South on Territorial Hwy, West on Bolton Hill Rd, North on 8th St to 88023.
Dwelling Type: Residential
Subdivision: N/A
Year Built: 2025, County: US
West on Hwy 126, South on Territorial Hwy, West on Bolton Hill Rd, North on 8th St to 88023.
Listing is courtesy of Executive Real Estate
Sign in to your account to continue