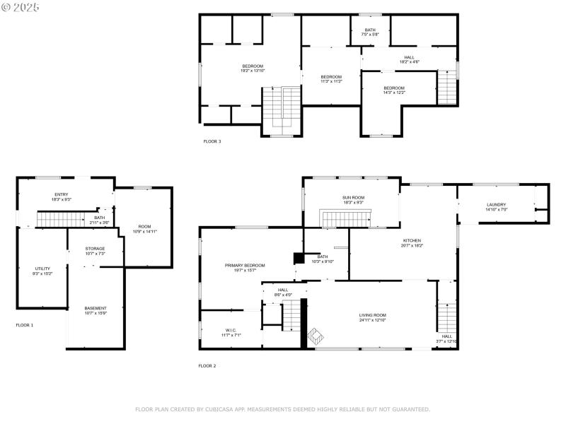
This Coquille home offers more than square footage — Tucked away on a quiet dead-end street with very little traffic this property provides both privacy and peace. Set on over three-quarters of an acre, there’s room to garden, play, and gather, while still being just minutes from town.The main floor centers on a bright living room with large windows that bring the outdoors in, and a wood stove that keeps everything cozy on cool evenings. The updated kitchen makes meal prep easy and enjoyable, with plenty of storage and workspace. The primary suite on the main level gives you a private retreat, while upstairs bedrooms and a bonus room provide flexibility for family, guests, or hobbies.Outside, the yard, greenhouse, and established fruit trees (apple, pear, peach, nectarine, plum, cherry) make it simple to grow your own food or enjoy fresh harvests each season. With a newer roof, multiple parking options, and plenty of storage, this property blends practicality with lifestyle.If you’ve been looking for a place where you can stretch out, plant roots, and enjoy both comfort and utility, this home is ready to welcome you.
W Central Blvd to 10th St to x to Twelth to N Henry
Dwelling Type: Residential
Subdivision: N/A
Year Built: 1926, County: US
W Central Blvd to 10th St to x to Twelth to N Henry
Listing is courtesy of Pacific Properties