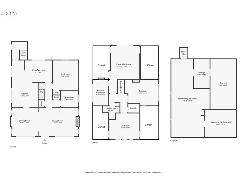
Experience the soul of Portland in a home that blends 1911 character with the confidence of a complete modern rebuild. Located in the heart of the vibrant Richmond neighborhood, this stunning Craftsman offers the perfect union of timeless design and worry-free living.Forget the typical old-home anxieties. A full "back-to-the-studs" renovation in 2003 included all-new electrical, plumbing, Pella wood frame & metal clad windows, and insulation, giving you the reliability of new construction. Enjoy classic details like built-ins, tall ceilings, and a cozy fireplace, knowing the hard work has already been done.Move-In Ready Confidence: With a freshly painted interior (2025) and exterior (2023), this home is polished and prepared for its next chapter.A True Owner's Retreat: Unwind in the spa-like primary suite, featuring a classic clawfoot tub, a separate shower, dual closets, and a private walk-out balcony with your own hot tub.Effortless Entertaining: The updated kitchen with its double oven, gas cooktop, and breakfast bar flows seamlessly to the swoon-worthy covered back porch and private, landscaped oasis of a backyard.Flexible Living: A bedroom and full, timelessly designed bathroom on the main floor provide the perfect space for guests, a home office, or multi-generational living.Modern Functionality: Benefit from rare finds in a historic home, including a newer-construction garage, central A/C, an on-demand tankless water heater, and convenient upstairs laundry. Situated just blocks from the energy of Hawthorne and Belmont, this is more than a house, it's a lifestyle.
From SE Hawthorne, Go South onto SE 42nd Ave
Dwelling Type: Residential
Subdivision: RICHMOND
Year Built: 1911, County: US
From SE Hawthorne, Go South onto SE 42nd Ave
Listing is courtesy of eXp Realty, LLC