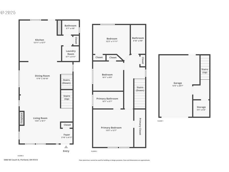
Experience urban living at its finest in this modern 3 bed, 2.5 bath home perfectly positioned between Laurelhurst and Mt. Tabor. Thoughtfully designed with high-end finishes, the open floor plan features 9-foot ceilings on the main level, hardwood floors, a stylish living room with gas fireplace and built-ins, and a formal dining area. The gorgeous chef’s kitchen offers quartz countertops, stainless steel appliances, an electric convection oven and stovetop, and an island ideal for cooking and gathering. The primary suite includes a walk-in closet and a beautifully updated primary bathroom featuring an oversized step-in shower. The solar system installed in June 2025 is fully paid off and will save you thousands on electricity for years to come. Additional highlights include plentiful closet space, tile bathroom flooring, Hunter-Douglas blinds, A/C, and an oversized one-car garage. Enjoy a fully fenced, private backyard with terraced garden beds—perfect for relaxing or gardening. With unbeatable access to parks, cafés, pubs, award-winning eateries, Max Light Rail, and I-84, this home places the best of Portland’s Northeast neighborhoods right at your fingertips. [Home Energy Score = 6. HES Report at https://rpt.greenbuildingregistry.com/hes/OR10193568]
NE 54th and NE Couch
Dwelling Type: Residential
Subdivision: NORTH TABOR
Year Built: 2015, County: US
NE 54th and NE Couch
Listing is courtesy of Opt
Sign in to your account to continue