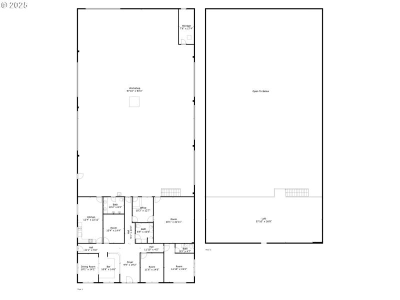
Large industrial building with robust remodeled office area. Machine shop has tall ceilings, tall, rollup doors, mezzanine storage, and dedicated bathroom. Office complex has large reception area plus private offices and large break room. Paved customer/employee parking and large gravel yard for equipment with wash station. Quick and easy access to I-5 interchange. Additional auxiliary shop also available for purchase. RMLS 465291757. Owners would consider cash, lease, and potential lease/option.
From Winchester, Old Highway 99 North, Right on Weyerhaeuser Drive
Dwelling Type: CommercialSale
Subdivision: N/A
Year Built: 1969, County: US
From Winchester, Old Highway 99 North, Right on Weyerhaeuser Drive
Listing is courtesy of Roseburg Homes Realty