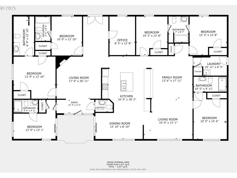
ENDLESS POSSIBILITIES in this large Neahkahnie Creek triple wide manufactured home + Lot, with two outbuildings, carport and parking areas, just south of Manzanita. Six bedrooms (4 ensuites, 1 jack n' jill connecting 2 bedrooms) plus office, 5.5 baths in 2,911 sq feet; separate front room with fireplace; combined family room, extra large kitchen and dining room, laundry. Large outside areas - .49 acres of potential, front and rear decks. The home is ready for a large family use, group-home, multi-generational family occupancy, or small business. See floor plan and desirable multi-use zoning attached. Property was leased for years by ambulance staff.
Hwy 101 to Neahkahnie Creek Road - behind the Adventist Medical Facility.
Dwelling Type: Residential
Subdivision: N/A
Year Built: 2001, County: US
Hwy 101 to Neahkahnie Creek Road - behind the Adventist Medical Facility.
Listing is courtesy of Berkshire Hathaway HomeService Northwest Real Estate