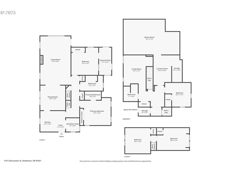
Multi-generational or ADU possibilities offered on this beautiful Gladstone home. The fully fenced yard and covered front porch welcome you into a spacious and comfortable interior featuring a large living room with a cozy fireplace, a kitchen with plenty of cupboard space, a charming dining nook, and a separate dining room for hosting. The main level includes two bedrooms, one with its own private patio, along with a primary suite featuring an en suite bathroom. Upstairs, two additional bedrooms provide flexible space for guests, offices, or hobbies. The basement adds even more versatility with a laundry room offering ample storage, a large bonus room, a full bathroom, and a second living area complete with a kitchenette and an extra bedroom — perfect for multi-generational living or private guest quarters. With a separate entrance and kitchenette, this home ideal for extended family or potential ADU income. Thoughtful updates include a new furnace, AC, and roof in 2025, a kitchen refresh with new countertops and cabinets in 2018, appliances in 2019, and tile flooring in 2021, plus a new composite deck in 2024. The home also features a new sewer connection installed in 2021 with a 10-year warranty, a basement floor replaced in 2024, and a solar-heated pool with a new liner added in 2023. Outside, the spacious backyard and covered deck create the perfect setting for barbecues, gardening, or simply relaxing in your own private retreat.
From McLoughlin, east on Gloucester
Dwelling Type: Residential
Subdivision: N/A
Year Built: 1926, County: US
From McLoughlin, east on Gloucester
Listing is courtesy of Opt