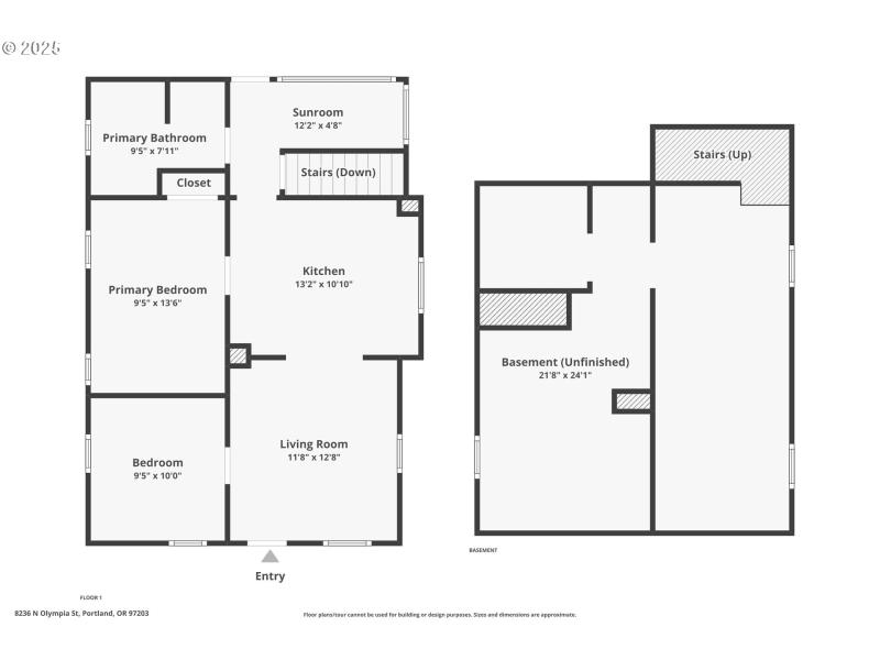
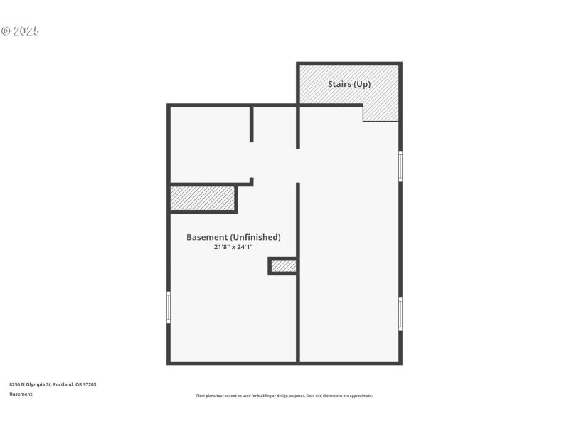
Wouldn't it be great to own a home that pays you to live there? This one does!Unlike so many listings that boast ADU potential, this North Portland bungalow already has a fully permitted ADU complete with a long-term tenant providing steady income. The ADU is approximately 540 square feet and features one bedroom, one full bathroom, and an open kitchen and living room that feels bright and inviting.The main home includes two bedrooms, one bathroom, and an unfinished basement ready for your expansion ideas. The kitchen is fully appointed with a dishwasher and is large enough for an eating area, opening directly to the living room for a comfortable flow. At the rear of the home, a convenient mudroom connects to the carport for easy everyday access.Outside, enjoy a private, fenced yard with a mature apple tree and off street parking under the carport. Thoughtfully designed, the property lives like two separate homes, offering comfort, privacy, and flexibility in a terrific North Portland Neighborhood! [Home Energy Score = 4. HES Report at https://rpt.greenbuildingregistry.com/hes/OR10242659]
Corner of Olympia and Charleston
Dwelling Type: Residential
Subdivision: N/A
Year Built: 1919, County: US
Corner of Olympia and Charleston
Listing is courtesy of Windermere Realty Trust