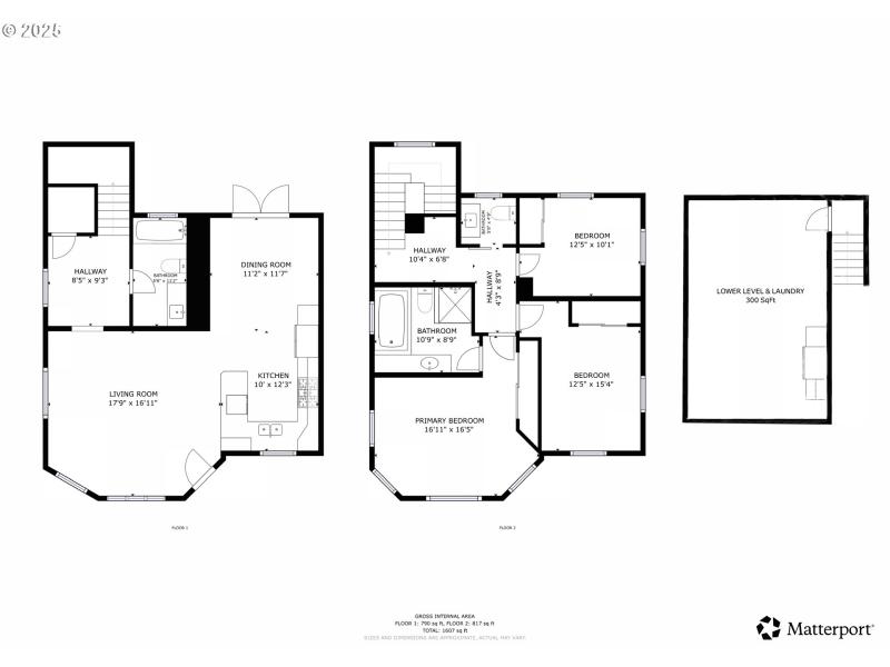
Welcome to the Roseway Treehouse. Under the same ownership for 30 years, this home has been updated in all the right ways and kept in pristine condition. Its second story sits high above its neighbors, bathing the home in natural light and offering generous seasonal views from each window. Upon entering, you’ll notice the open layout and smartly placed windows make the main floor feel both spacious and warm. In the kitchen you’ve got cabinets and counter space galore, along with updated stainless steel appliances. Off the kitchen, the dining room has French doors that seamlessly blend the outside in, opening to your peaceful backyard sanctuary. Upstairs, you have three bedrooms and 1.5 baths. With a full bath on the main, that makes this a three toilet household! The primary has its own en suite bath, with separated soaking tub and shower. Outside you have a detached garage that you could use for parking, storage, a workshop, or even extra studio or work from home space. The partial basement is in tip top shape - down here you’ll find the laundry area, a whole house water filtration system, tankless water heater, 1 year old furnace, and more room for storage. Enjoy sidewalk lined streets and walks to Wellington Park, as well as a plethora of nearby dining options on Cully, Sandy and Fremont. Stop by an open house this weekend! Saturday 11am-1pm and Sunday 12-2pm. [Home Energy Score = 6. HES Report at https://rpt.greenbuildingregistry.com/hes/OR10242532]
65th Ave between Mason and Skidmore
Dwelling Type: Residential
Subdivision: ROSEWAY
Year Built: 1926, County: US
65th Ave between Mason and Skidmore
Listing is courtesy of Urban Nest Realty