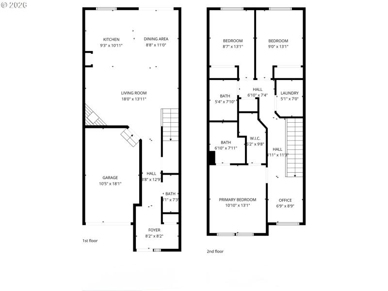
Cozy Traditional Home in a Friendly Community in Cooper Mountain area. Welcome to this charming traditional-style home nestled in a well-kept community, conveniently located within minutes of schools and Cooper Mountain Nature Park. Vaulted ceilings throughout create a bright, spacious feel in this 3-bedroom, 2.5-bath home. The upper-level loft offers the perfect space for a home office, study area, or additional flex space to fit your needs. Enjoy the comfort of a private primary suite featuring an ensuite and a generous walk-in closet. The great room floor plan provides an ideal setting for both everyday living and entertaining, while the kitchen shines with new quartz countertops, new vinyl plank flooring and ample storage to keep everything organized. The community features just 35 homes, along with (3) three additional permitted parking-only lots, offering a peaceful and well-maintained neighborhood atmosphere. Roof replaced in 2019 and HOA has decks on the maintenance schedule summer 2026. Open House 3/21 & 3/22 12pm-2pm.
From Farmington Road, south on Miller Hill, right on Lucas Oaks to Millennium
Dwelling Type: Residential
Subdivision: N/A
Year Built: 2003, County: US
From Farmington Road, south on Miller Hill, right on Lucas Oaks to Millennium
Listing is courtesy of Coldwell Banker Professional
Sign in to your account to continue