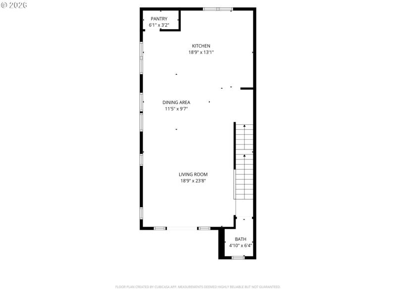
Nearly new South Hillsboro townhome with thoughtful upgrades throughout offers 4 bedrooms and 3.5 baths with 9’ ceilings on every level - creating a bright, open feel from top to bottom. The kitchen anchors the main level with a generous island, walk-in pantry, quartz countertops, under-mount sinks, stainless steel appliances, and soft-close cabinetry. Wide-plank laminate hardwood flooring spans the entire main floor, complemented by matte black hardware, lighting, and fixtures in both the kitchen and baths. An efficient electric heat pump provides year-round comfort. The primary suite features a vaulted ceiling, walk-in closet, dual sinks, and a spacious walk-in shower. Upstairs, a loft offers flexible space ideal for a home office or lounge area. The lower level includes a bedroom and full bath - perfect for guests or multigenerational living. Additional highlights include a double garage, two-car driveway, and a covered deck off the great room for easy indoor-outdoor living. Cute community with dog park and other amenities nearby! [Home Energy Score = 7. HES Report at https://rpt.greenbuildingregistry.com/hes/OR10226041]
TV Highway to Brookwood Ave
Dwelling Type: Residential
Subdivision: WESTBROOKE ESTATES
Year Built: 2024, County: US
TV Highway to Brookwood Ave
Listing is courtesy of Front Door Realty
Sign in to your account to continue