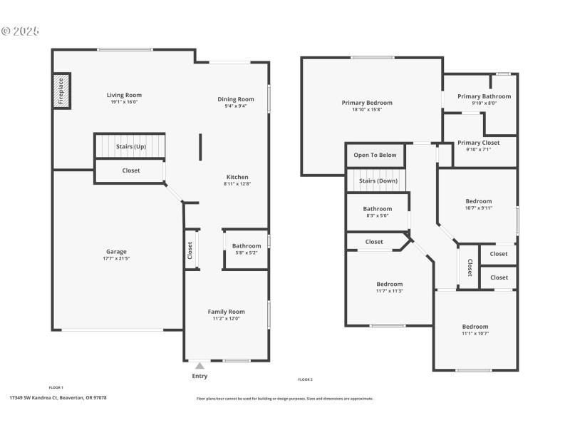
This charming two-story home in Beaverton offers an ideal blend of comfort and functionality. The inviting covered front porch leads into a spacious family room and a thoughtfully designed main level featuring an open-concept kitchen, dining area, and living room with a cozy gas fireplace. A sliding door off the dining room opens to a fully fenced backyard with a deck and pergola, perfect for outdoor entertaining. A convenient half bath completes the main floor. Upstairs are four bedrooms, including a primary suite with a vaulted ceiling, walk-in closet, and private en suite bathroom. A full hallway bath serves the additional bedrooms. The attached garage provides ample storage and parking, while the home’s layout and outdoor spaces make it an excellent choice for both everyday living and hosting gatherings in a desirable Beaverton location.
SW 173rd & Kandrea ct
Dwelling Type: Residential
Subdivision: N/A
Year Built: 1997, County: US
SW 173rd & Kandrea ct
Listing is courtesy of Opt