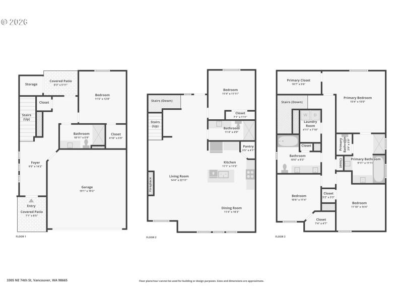
Spacious, versatile, & perfectly located! This 5-bdrm, 4-bath home offers room for everyone, plus parking for up to 6 vehicles. Tucked away on one of the largest lots in the neighborhood, enjoy peaceful walks through scenic greenspace & the nearby community park right on your way home. The lower level features a private bdrm & full bath—ideal for guests or dual living. Main floor offers 1 bdrm, 1 bath, & Great room living w/ an abundance of light & spacious kitchen. Upstairs you will find a large prim ste w/ WI closet & private bath. 2 additional bdrms w/ ample storage round out this perfect home. Enjoy year-round outdoor living on the lower patio or the main level covered decks, plus extra storage in the tool shed. The terraced yard offers privacy & great gardening space. Conveniently located by amenities, shopping, dining, & parks—this home truly has it all!
NE 78th St - South NE 30th St - Left NE 75th St - Right NE 33rd Ave - NE 74th St
Dwelling Type: Residential
Subdivision: HIDDEN GARDENS PH2 LOT 43 3118
Year Built: 2017, County: US
NE 78th St - South NE 30th St - Left NE 75th St - Right NE 33rd Ave - NE 74th St
Listing is courtesy of Redfin
Sign in to your account to continue