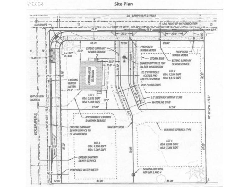
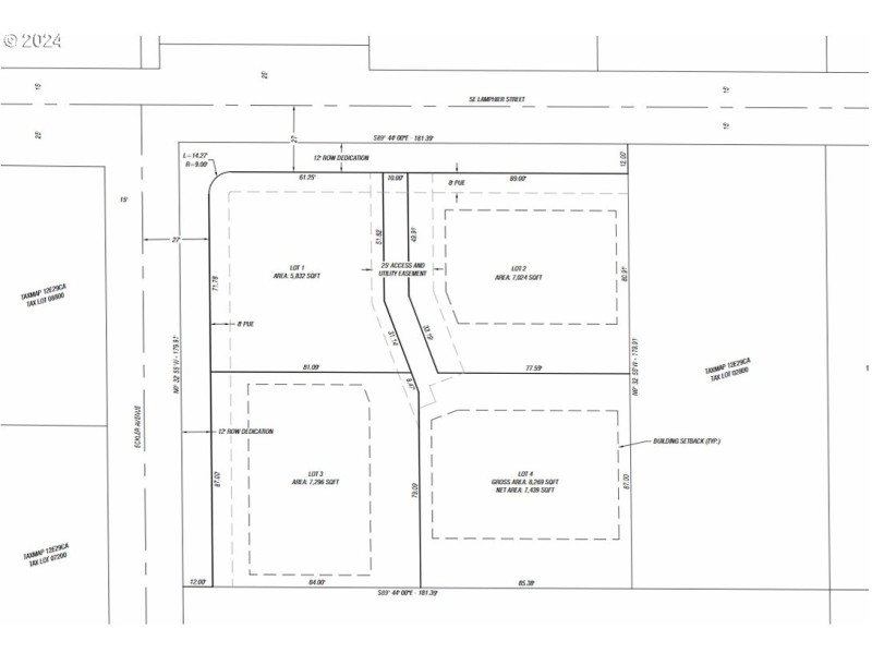
Rare opportunity to own a huge parcel of dividable land in Milwaukie! The site is unincorporated Clackamas County and includes the existing home which is currently income producing as a rental. Surveys are complete by Seller for a four lot subdivision and the project is ready to go with a county bond. The current proposed development allows for each of the land parcels to each have a single family or an attached home of 1-4 units, so you could potentially build 16 townhomes. the existing home sits on one parcel. Buyer to complete it's own due diligence. Existing home had new sewer 2018 and from 2019 had new roof, new gutters, new skylights, interior renovation, updates to wiring, new appliance and new interior and exterior paint.
SE Lamphier to SE Eckler. Property is on the corner of SE Lamphier & SE Eckler
Dwelling Type: Land
Subdivision: N/A
Year Built: N/A, County: US
SE Lamphier to SE Eckler. Property is on the corner of SE Lamphier & SE Eckler
Listing is courtesy of Bespoke Realty
Sign in to your account to continue