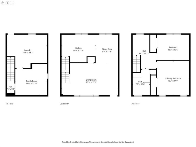
Built in 1950 with subtle mid-century modern vibes, this centrally located Portland townhome offers timeless character and thoughtful updates across 1,606 square feet. The entry opens into a spacious, warm, and welcoming living room that flows seamlessly into the dining area and kitchen—creating an open, connected layout ideal for everyday living and entertaining. Large living room windows fill the space with natural light and overlook peaceful, landscaped grounds. Hardwood floors, 8' ceilings, vinyl windows, and classic wood blinds enhance the home’s inviting feel throughout. The kitchen features warm wood cabinetry, stainless steel appliances, granite countertops, and durable Armstrong tile flooring, blending function and style within the open dining/kitchen combo. Upstairs, a sunny south-facing bedroom overlooks the quiet courtyard, while the second bedroom is privately positioned on the north side. Both offer double closets and hardwood floors. The full bath includes a pedestal sink, classic tile flooring, and a tub/shower combination. The lower level adds flexibility with a bonus room, laundry area, exterior entrance, and potential to add a bathroom—ideal for guests, a home office, or creative space. Quietly tucked away yet close to everything, you’ll enjoy assigned parking, a Walk Score of 86, Bike Score of 91, and easy access to Safeway, neighborhood cafes, and the greenspaces of Creston Park with summer swimming and a popular dog park. A/C units and bike rack included, piano negotiable. HOA dues cover water, sewer, garbage, landscaping, and professional management—making this a compelling opportunity in one of Portland’s most connected neighborhoods!
SE 42nd Ave between SE Francis and Powell
Dwelling Type: Residential
Subdivision: Creston Court Condominium
Year Built: 1950, County: US
SE 42nd Ave between SE Francis and Powell
Listing is courtesy of Realty One Group Prestige
Sign in to your account to continue