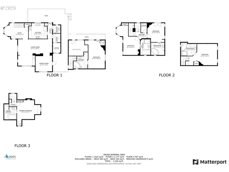
Gorgeously remodeled Victorian blends historic charm with modern luxury in the heart of Ashland. R2 zoning offers versatile living: a gracious private residence, a home with Airbnb units, or a B&B with owner-occupied quarters. Once the beloved Midsummer Night's Dream B&B, it's now a private home with 2 vacation rentals in a stunning detached annex. The main house (2375 SF) features hardwood floors, a lovely living room with fireplace, parlor/game room, formal dining room, chef's kitchen, laundry room, & small office. Three luxurious suites are in the main home, with two more in the annex (1092 SF), each with a fireplace, spa bath, shower & a private deck. Expansive lush lawn with mature flowering trees & mountain views, creates a peaceful & picturesque setting. Unbeatable location near theaters, dining, & all that makes Ashland magical. Off street parking. Most furnishings included. An exceptional opportunity to live beautifully—and share it. Request income information & amenity list.
Siskiyou Blvd. to west on Beach to Address
Dwelling Type: Residential
Subdivision: N/A
Year Built: 1901, County: US
Siskiyou Blvd. to west on Beach to Address
Listing is courtesy of Millen Property Group