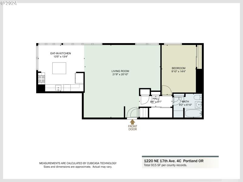
Live the high-rise lifestyle close to downtown for under $300k! Move in and enjoy summer sun and jaw-dropping sunsets on the roof with your friends. Spacious, corner unit on the 4th floor. Open floorplan is perfect for entertaining, kitchen island adds extra counterspace for meal prep or putting out a buffet for gatherings. The warm-toned bamboo flooring (2019) is in great condition. Plenty of closets, plus a deeded storage unit in basement. Hang your bike in the underground garage where it's safe from the elements. This condo was originally a 2-bedroom unit- the wall was removed to enlarge the living room. Convert back to a 2-bedroom or add a TV room/den by installing a wall. Parking is gated & deeded. Active community with fun gatherings. Gated, covered patio and rooftop party room (with tables and chairs) can be reserved for private events. Low HOA fees cover water, sewer, garbage. Secure entry with camera and app to give visitors access. Great location near shops, coffee, restaurants, groceries. Minutes to freeways, public transport, downtown. Live on the eastside of the river instead of the Pearl and save thousands on HOA fees and taxes. The Fontaine is the place to be!
Corner of NE Multnomah and NE 17th Ave
Dwelling Type: Residential
Subdivision: FONTAINE CONDOMINIUMS
Year Built: 1963, County: US
Corner of NE Multnomah and NE 17th Ave
Listing is courtesy of Windermere Realty Trust