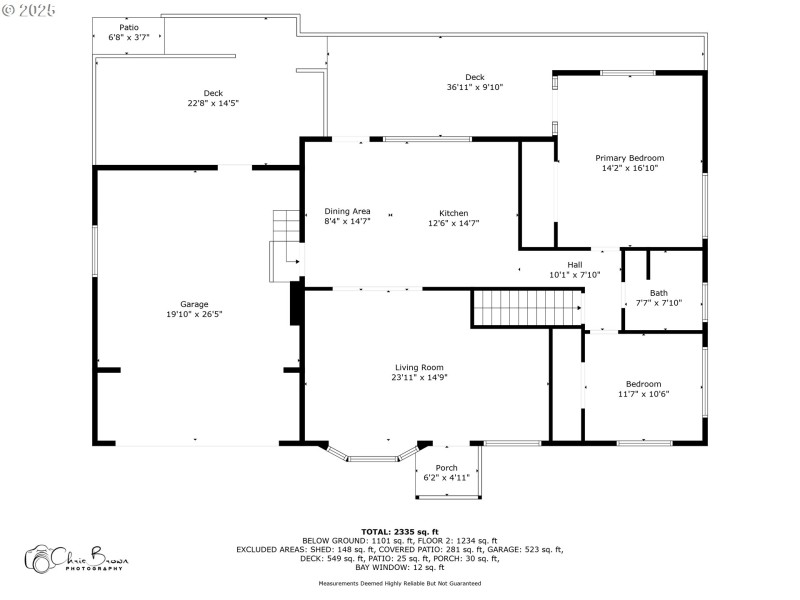
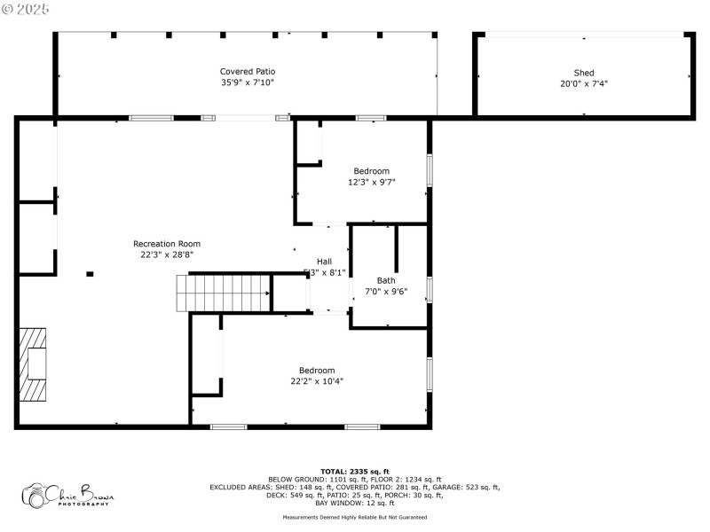
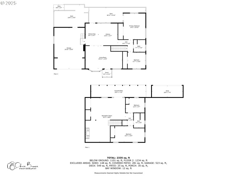
Great acreage property in Eagle Creek, just minutes from Sandy, Boring & Estacada! This charming country retreat sits on over 4 acres of gently sloping property and offers ample space between the main home and guest home. The main home offers generous living space with 2,335 sqft, 4 bedrooms and 2 baths, as well as potential for multi-gen living with the full walk-out basement. Lots of recent upgrades to the main home including water heater, HVAC, well pump and roof, new back deck and more. At the other end of the property sits the cozy 799 sqft guest home, providing a private space for visitors, a home office or hobby space. This beautiful property is lined with mature apple & plum trees, new fencing and a small barn to store your equipment. Whether you're dreaming of a quiet retreat, a multi-gen living setup or a country getaway with room to grow, this unique property is full of opportunity and charm.
Take OR-211, NW on SE Judd Rd
Dwelling Type: Residential
Subdivision: N/A
Year Built: 1963, County: US
Take OR-211, NW on SE Judd Rd
Listing is courtesy of Premiere Property Group LLC