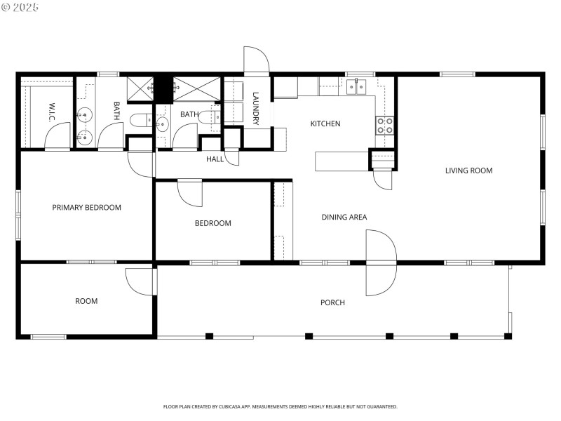
Updated Manufactured Home in Hayden Island. Discover comfort and convenience in this well-maintained 2-bedroom, 2-bath manufactured home located in the Hayden Island community—just minutes from the Columbia River, I-5, shopping, and dining. This home features a large living room, a dining area, kitchen with ample storage, laundry room, and a versatile bonus room—perfect for craft space, or guest area. Enjoy outdoor space with a good-sized porch, backyard and parking for up to 3 vehicles. Community amenities include a clubhouse, four heated pools, basketball court, playground, picnic area with tables, and a fully equipped fitness center. Pet-friendly and professionally managed for peace of mind.
Entrance to park is located at corner of Hayden Island & N Starlight
Dwelling Type: Residential
Subdivision: HAYDEN ISLAND
Year Built: 1968, County: US
Entrance to park is located at corner of Hayden Island & N Starlight
Listing is courtesy of MORE Realty