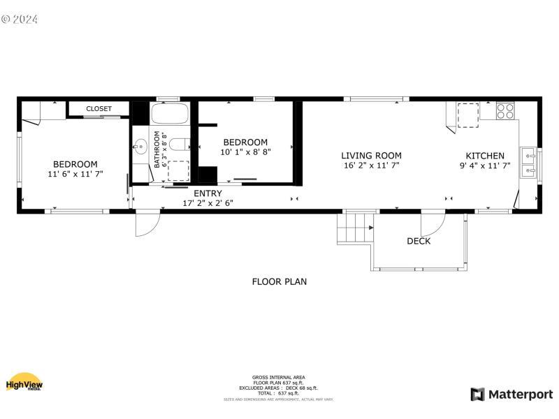
Imagine Building your new home on this Private 24 Acres perched among the clouds with incredible views of the Three Sisters and Coastal Range! This spectacular property is located a top a hill on a dead end road just between Crow & Veneta for utmost privacy!There is currently a 1968 Single Wide offering a temporary place to settle while you construct your dream home! The home offers 2 bedrooms, 1 bathroom and an open layout.The 60X80 SHOP features concrete floors and a storage platform. Perfect for all of your hobbies and storage. The property offers great separation between the Shop, current dwelling and future homesite. The homesite has been cleared and is ready for your new Home!
Territorial To Vaughn to Sturtevant
Dwelling Type: Residential
Subdivision: N/A
Year Built: 1968, County: US
Territorial To Vaughn to Sturtevant
Listing is courtesy of Keller Williams Realty Eugene and Springfield