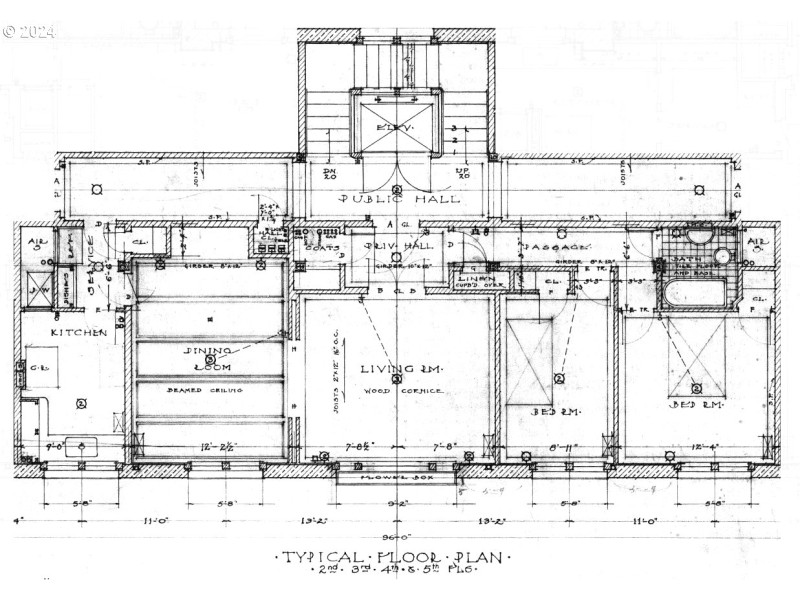
*HOA dues include all utilities*. Best value penthouse in one of the finest historic buildings in the beautiful alphabet district! Designed by prominent architects Lazarus, Whitehouse & Fouilhoux, whose most celebrated works include the Vista House and the Rockefeller Center. This sophisticated top floor two bedroom condo won’t disappoint even the pickiest architecture enthusiasts or history lovers. The minute you arrive at the building, you will be greeted by the old world charm with its intricate design features such as geometric patterned brickwork and stained glass Wickersham monogram. Inside the unit, the 10 ft beam ceilings give you an exceptionally grandeur and spacious feeling. West-facing windows provide picturesque West Hills & city views from every room. Also features elegantly designed crown molding, beamed ceiling in the formal dining room, and original hardwood floors throughout. If you like to share a good story at your next dinner party, the Award winning actor Clark Gable was one of the famous tenants who lived in this building in 1922 according to numerous resources. Other notable residents include Hal and Dorothy McCall (parents of Governor of Oregon Tom McCall). Location couldn’t be any better. Walkable distance to Whole Foods, Trader Joe's, Fred Meyer, parks, coffee, galleries, shops & restaurants on NW 21st, NW 23rd and Pearl district. Re-piping work has been completed in this unit. Buyer can enjoy new PEX water lines, new booster pump, hot water recirculation pump, pipe insulation and backflow prevention. Over the past years, Wickersham has been meticulously taken care of: a newer boiler (2017), newer roof (2019), rehabbed windows (2023), interior aesthetic upgrades in the flooring/carpet, paint, and elevator, fire escape repairs. Buyers can move in worry free, enjoying all the new system upgrades. Schedule a showing today, own a piece of history and live your best city life!
18th Ave and Flanders St
Dwelling Type: Residential
Subdivision: Nob Hill
Year Built: 1910, County: US
18th Ave and Flanders St
Listing is courtesy of Oregon First