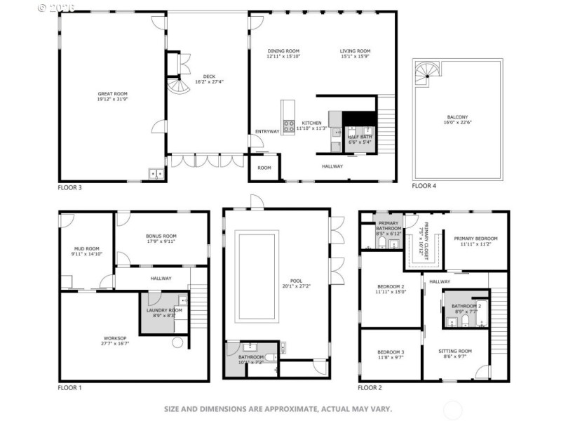
Unique coastal home w/ocean views & indoor pool! Rare opportunity to own a custom 3500+ sqft Northwest post & beam home on a double J-to-I Place lot in desirable Surfside. Designed by a longtime coastal resident and offered below original build cost! Home features 3 beds, 3.5 baths, vaulted open-concept living w/a wall of ocean view windows, & bonus spaces across 3 levels. A covered deck connects to a 2nd building w/a sunlit great room/studio & your own indoor resistance pool! Enjoy a rooftop deck w/panoramic views of the ocean, ample room for hobbies or guests, space for pets w/a catio & dog run, & a peaceful location near the beach. Comes w/a generous list of included furniture & appliances, plus many thoughtful closing considerations!
From SR4 heading west, turn right onto Sandridge Rd, left onto Oysterville Rd, right onto I St, rig
Dwelling Type: Residential
Subdivision: N/A
Year Built: 2019, County: US
From SR4 heading west, turn right onto Sandridge Rd, left onto Oysterville Rd, right onto I St, rig
Listing is courtesy of Windermere Northwest Living
Sign in to your account to continue